Stanovanje - PULA Vprašaj za ceno
| Lokacija | PULA, Istrska |
| Cena € | Cena na upit |
| Površina | 46 m2 |
| Število sob | 2 |
| Število kopalnic | 1 |
| Bližina prevoza | DA |
| Oddaljenost od morja | 3500 m |
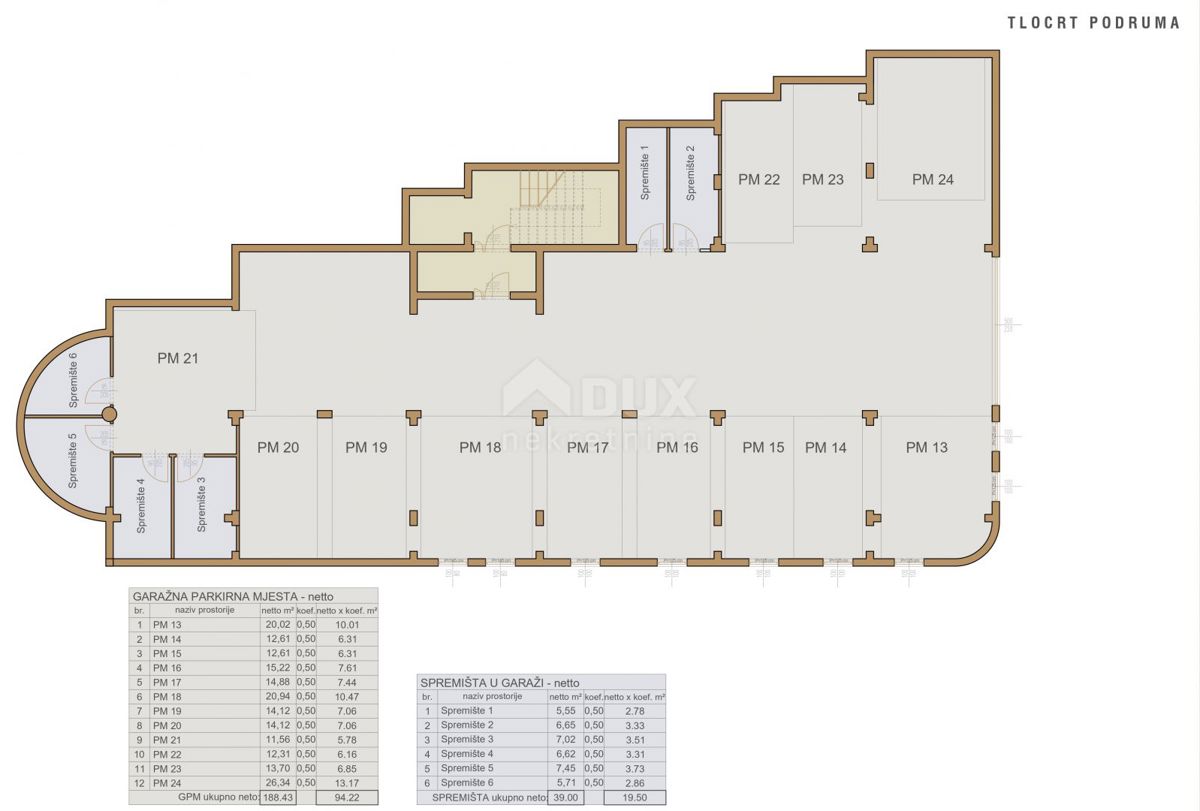
ISTRA, PULA - Nedaleč od centra mesta in znamenite Verude se v mirni ulici nahaja kvalitetna novogradnja. S ponosom predstavljamo nov gradbeni projekt, ki se nahaja na zanimivi lokaciji v mestu Pula. Objekt se namreč nahaja le 3 minute vožnje od centra mesta, prav tako pa je le 5 minut vožnje oddaljen od znanega turističnega naselja Verudela. Stavba je pozicionirana na mirni lokaciji, brez velikega prometa v bližini vsebine, potrebne za vsakdanje življenje. Objekt sestavlja več stanovanjskih enot, ki se raztezajo od pritličja objekta do 3. nadstropja. Ob objektu so urejena parkirna mesta na vrtu objekta, kot tudi v garaži objekta, bodoči etažni lastniki pa imajo možnost izbire parkirnega mesta za svoje pločevinaste ljubljenčke. OPIS STANOVANJA; Tako vam v tem objektu s ponosom predstavljamo stanovanje v 2. nadstropju, ki obsega skupno 46,53m2 NETO uporabne površine. Stanovanje je organizirano tako, da ima vhod v stanovanje hodnik, ki loči stanovanjski prostor na zasebni prostor in prostor za dnevno življenje in zabavo. Tako se v zasebnem delu stanovanja nahaja 1 prostorna spalnica, ena večja kopalnica in manjša shramba. Prostor za dnevno življenje je zasnovan kot večji »open space« prostor, v njem pa je prostorna kuhinja, udobna jedilnica in večja dnevna soba. Celoten prostor je preplavljen z naravno svetlobo, ki prodira v stanovanje skozi velike steklene stene. Iz dnevne sobe je izhod na zunanjo teraso. * Stranke imajo možnost izbire nakupa parkirnega mesta, bodisi na vrtu objekta ali na vrtu objekta; - parkirišče na vrtu objekta; 8.290,00 € - Parkirišče na vrtu glede na kvadraturo: od 21.670,00 € do 49.390,00 € - Shramba glede na kvadraturo; od 10.430,00 € do 13.990,00 € TEHNIČNI IN DODATNI PODATKI; * Vsako stanovanje v objektu bo opremljeno s talnim električnim gretjem * Vgrajeno bo kvalitetno PVC stavbno pohištvo * Fasadna izolacija 10 cm * Objekt ima dvigalo, ki povezuje garažo z vsako etažo objekta * Postavljena bo kvalitetna keramika vgrajeno v etažah (zaenkrat imajo stranke možnost vpliva!) * Možnost vselitve je predvidena v začetku leta 2025 OPIS LOKACIJE; Stavba se nahaja na mirni lokaciji v mestu Pulj, le 3 minute vožnje od centra mesta in le 5 minut vožnje od znanega turističnega naselja Verudela. Na Verudeli se nahaja veliko število skalnatih in kamnitih plaž s kristalno čistim morjem, v neposredni bližini objekta pa se nahajajo številne restavracije, kavarne, kot tudi tržnica, ob objektu je tudi manjša trgovina, kot tudi vse, kar potrebujete za varen in miren vsakdanjik sodobnega človeka. Skratka, to je nepremičnina vredna vaše pozornosti, ki lahko služi kot idealna možnost za zasebno naložbo ali kot možnost za pravo družinsko hišo. Za vsa dodatna vprašanja, potrebne informacije ali želje po organizaciji termina za ogled lokacije in trenutnega stanja gradnje nas kontaktirajte! Cenjene stranke, agencijska provizija se obračunava v skladu s Splošnimi pogoji poslovanja: www.dux-nekretnine.hr/opci-uvjeti-poslovanja
ID: 1039956