Hiša - PULA - 470.000 EUR
| Lokacija | PULA, Istrska |
| Cena € | 470.000 |
| Površina | 141 m2 |
| Število sob | 4 |
| Površina parcele | 283 m2 |
| Število kopalnic | 3 |
| Bližina prevoza | DA |
| Oddaljenost od morja | 3500 m |
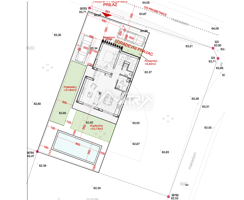
Na prodaj je moderna dvojna hiša s skupno površino 141,26 m², ki se nahaja na parceli velikosti 283 m², v mirnem okolju, idealnem za družinsko življenje, počitek ali naložbo v turizem. Nepremičnina se prodaja v visoki fazi roh-bau: vgrajeno je PVC stavbno pohištvo, položena keramika, nameščena sanitarna oprema in klimatski sistem. Kupcu ostane le še opremljanje interierja z pohištvom po lastnih željah. Hiša je sestavljena iz pritličja in nadstropja. V pritličju, s površino 62,25 m², se nahajajo vhodni prostor, prostorna dnevna soba povezana s kuhinjo in jedilnico v open space konceptu, ena spalnica, kopalnica, ločeno WC in hodnik. Notranje stopnišče vodi v nadstropje s skupno površino 79,01 m², kjer sta dve spalnici, skupna kopalnica in hodnik. Posebno vrednost daje velika terasa, delno pokrita in delno odprta, z neposrednim izhodom iz obeh spalnic – idealna za uživanje v toplih večerih. Na dvorišču je predviden pravokotni bazen dimenzij 4 x 8 metrov, s skupno površino 32 m², popoln za poletno osvežitev in sprostitev. Parcela vključuje tudi dva zasebna parkirna prostora znotraj ograjenega dela. Ta hiša predstavlja odlično priložnost za ustvarjanje modernega doma na jadranski obali ali kot naložbo z velikim potencialom za turistični najem. Poleg tega obstaja možnost nakupa obeh stanovanjskih enot in s tem prevzema celotnega objekta. Za več informacij, tloris ali dogovor za ogled nas lahko kontaktirate.
ID: 1245876