Stanovanje - PRIVLAKA - 369.600 EUR
| Lokacija | PRIVLAKA, Zadarska |
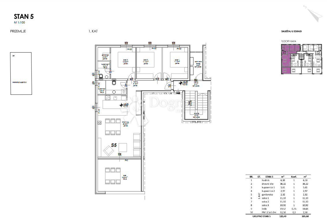
| Cena € | 369.600 |
| Površina | 105 m2 |
| Število sob | 4 |
| Število kopalnic | 2 |
| Oddaljenost od morja | 120 m |
Stanovanje S5 v prvem nadstropju ponuja 105,60 m² bruto površine, veliko dnevno sobo in tri spalnice. Dnevna soba se odpira na ložo, poleg 3 spalnic pa ima stanovanje tudi dve kopalnici. Lega nadstropja zagotavlja več svetlobe in zasebnosti ob enaki oddaljenosti od plaže. Rezervirajte termin in si zagotovite svoj prostor pod soncem.
ID: 1228117