Stanovanje - PRIVLAKA - 350.315 EUR
| Lokacija | PRIVLAKA, Zadarska |
| Cena € | 350.315 |
| Površina | 100 m2 |
| Število sob | 3 |
| Število kopalnic | 2 |
| Blizu plaže | DA |
| Oddaljenost od morja | 0 m |
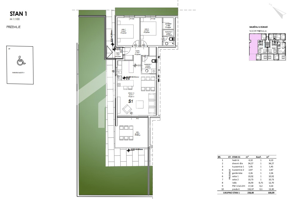
Prodaja se prostorno dvoposteljno stanovanje (S1) v pritličju novogradnje v Privlaci, v neposredni bližini Zadra. Skupna površina stanovanja z dodatki znaša 100,09 m2. Ta nepremičnina obsega prostoren dnevni prostor s kuhinjo in jedilnico, dve spalnici, dve kopalnici, garderobo in ložo. Stanovanju pripadata tudi eno parkirno mesto in vrt površine 130 m2. Stanovanje se nahaja v stavbi z 10 stanovanjskimi enotami, ki je umeščena v drugi vrsti od morja. Dostop do stavbe je zaseben, ograjen in zavarovan s sistemom. Stanovanja v pritličju te stavbe so prilagojena osebam z invalidnostjo. Nepremičnina je zgrajena in opremljena s kakovostnimi materiali, maksimalno udobje pa bo vsaki stanovanjski enoti zagotovilo talno ogrevanje v dnevnem prostoru, kuhinji in kopalnicah, klimatske naprave v vseh prostorih, visokokakovostne parkete in keramiko ter PVC stavbno pohištvo najvišje kakovosti. Načrtovani zaključek je spomladi 2026. Kupec pri nakupu te nepremičnine NE PLAČA davka na promet nepremičnin! Za vse dodatne informacije ali ogled nepremičnine nas prosimo kontaktirajte.
ID: 1258950