Stanovanje - PRIVLAKA - 350.315 EUR
| Lokacija | PRIVLAKA, Zadarska |
| Cena € | 350.315 |
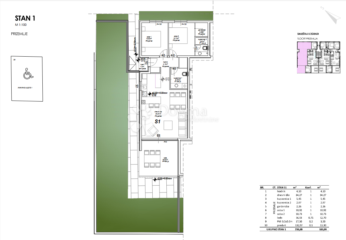
| Površina | 100 m2 |
| Število sob | 3 |
| Površina parcele | 132 m2 |
| Število kopalnic | 2 |
| Bližina prevoza | DA |
| Oddaljenost od morja | 120 m |
Apartma S1 se nahaja v pritličju novogradnje v Privlaki, 120 metrov od morja. Tloris: velik bivalni prostor z dostopom do lože, ločen spalni del in dve kopalnici. Neto uporabna površina znaša 100,09 m² po ISO standardih, z vgrajeno toplotno izolacijo, kakovostnim mizarstvom in določenim parkirnim mestom. Mikrolokacija je mirna, 2 minuti hoje do plaže, trgovin in drugih ugodnosti. Nepremičnine te vrste hitro izginejo s trga; rezervirajte si termin za ogled, dokler je stanovanje še na voljo.
ID: 1228135