Stanovanje - PRIVLAKA - 275.000 EUR
| Lokacija | PRIVLAKA, Zadarska |
| Cena € | 275.000 |
| Površina | 78 m2 |
| Število sob | 3 |
| Število kopalnic | 1 |
| Bližina prevoza | DA |
| Oddaljenost od morja | 1000 m |
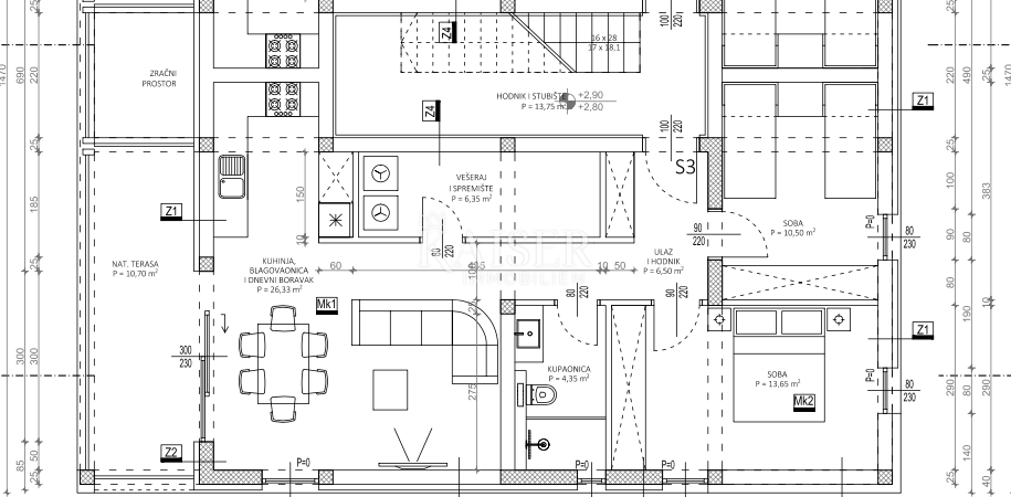
V prvem nadstropju stanovanjske stavbe se nahaja stanovanje S3 s površino 78,23 m², zasnovano za udobno družinsko življenje ali kot kakovostna naložba za počitnice in oddajanje. Vhod in hodnik s površino 6,50 m² vodita v prostorno bivalno površino 26,33 m², v kateri so kuhinja, jedilnica in dnevna soba povezani v svetlo in funkcionalno enoto, idealno za druženje in sprostitev. Pralnica in shramba s površino 6,35 m² sta diskretno integrirana v tloris in olajšata vsakodnevno organizacijo prostora. Stanovanje ima dve spalnici, eno s površino 10,50 m² in drugo s površino 13,65 m², ki zagotavljata dovolj prostora za družino ali goste, kopalnica s površino 4,35 m² pa je priročno pozicionirana med zasebnim in bivalnim delom stanovanja. Stanovanje je bilo zgrajeno s poudarkom na kakovosti, energetski učinkovitosti in udobju skozi vse leto. Dobra toplotna izolacija zagotavlja prijetno temperaturo, moderno PVC stavbno pohištvo v antracitni barvi z roletami in komarniki omogoča udobno regulacijo svetlobe in zasebnost, talno ogrevanje v vseh prostorih pa zagotavlja enakomerno toploto v hladnejšem delu leta. Klimatske naprave v dnevni sobi in spalnicah zagotavljajo prijetno klimo poleti, kakovostna vhodna vrata pa prispevajo k občutku varnosti. Pokrita terasa s preračunsko površino 5,35 m² je prijeten podaljšek dnevne sobe in lep kraj za jutranjo kavo ali večerno sprostitev. Stanovanju pripadata tudi dve parkirni mesti. Stanovanje S3 ponuja harmonično razmerje med notranjim prostorom, funkcionalno razporeditvijo in prijetno teraso - idealno za bivanje ali investicijo. Stavba se nahaja le 1 km od središča Privlake, kar omogoča hiter dostop do vseh potrebnih ugodnosti. V neposredni bližini se nahajajo klinika, lekarna, trgovine za vsakodnevno nakupovanje in različne restavracije za prijetno druženje. Privlaka je slikovita vasica, ki se nahaja na polotoku v Zadarski županiji. To majhno mesto je znano po svojih naravnih lepotah, dolgih peščenih plažah, čistem morju in bogati kulturni dediščini. Nakup nepremičnine v Privlaki je odlična priložnost za tiste, ki iščejo mirno življenje ob morju, z lahko dostopnimi mestnimi objekti in storitvami. Provizija agencije za kupca znaša 3 % + DDV in se plača v primeru nakupa nepremičnine, ob sklenitvi prvega pravnega dejanja. ID KODA: 128-83 Kontakt: Nina Fabijan, +385 95 504 6197, nina@kaiser-immobilien.hr
ID: 1262117