Stanovanje - PRIVLAKA - 240.000 EUR
| Lokacija | PRIVLAKA, Zadarska |
| Cena € | 240.000 |
| Površina | 67 m2 |
| Število sob | 2 |
| Število kopalnic | 1 |
| Bližina prevoza | DA |
| Oddaljenost od morja | 1000 m |
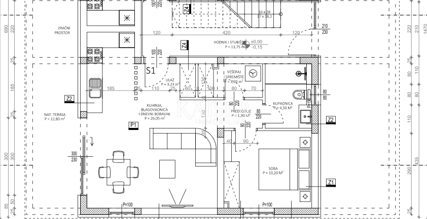
V pritličju stanovanjske stavbe se nahaja stanovanje S1, veliko 67,18 m². Namenjeno je tistim, ki iščejo ravnovesje med zasebnostjo, udobjem in prijetnim bivanjem na prostem. Dobra razporeditev prostora je opazna že ob vstopu: vhodni prostor v velikosti 3,23 m² vodi v zračen bivalni del v velikosti 26,05 m², ki povezuje kuhinjo, jedilnico in dnevno sobo – idealen prostor za vsakdanje življenje in druženje. Hodnik v velikosti 1,90 m² diskretno ločuje zasebni del stanovanja, pralnica in shramba v velikosti 3,20 m² pa zagotavljata dodatno praktičnost. Spalnica v velikosti 10,20 m² je zasnovana kot miren kotiček za sprostitev, kopalnica v velikosti 4,50 m² pa je funkcionalno vključena v celotno stanovanje. Stanovanje je bilo zgrajeno s poudarkom na kakovosti, energetski učinkovitosti in dolgoročni vrednosti. Toplotna izolacija zagotavlja prijetno temperaturo skozi vse leto, moderno PVC stavbno pohištvo v antracitni barvi z roletami in komarniki omogoča dobro regulacijo svetlobe in zasebnosti, talno ogrevanje v vseh prostorih pa zagotavlja občutek enakomerne toplote v hladnejših mesecih. V dnevni sobi in spalnici sta nameščeni klimatski napravi za prijetno klimo poleti, varnostna vhodna vrata pa še dodatno prispevajo k občutku varnosti in miru v lastnem domu. Posebna vrednost stanovanja S1 je njegov zunanji prostor. Pokrita terasa s površino 6,40 m² je naravni podaljšek dnevne sobe in idealen kraj za jutranjo kavo ali večerno sprostitev, vrt s površino 6,50 m² pa ustvarja prijeten, intimen zeleni kotiček ob stanovanju. V neposredni bližini je borov gozd, ki ga je mogoče videti s terase in vrta, na drugi strani pa se odpira pogled proti morju, kar prostoru daje dodaten odmerek mediteranskega vzdušja in občutek povezanosti z naravo. Stanovanju pripadata tudi dve parkirni mesti. Neto uporabna površina stanovanja je 67,18 m². Stanovanje S1 je premišljena rešitev za udobno bivanje v pritličju, z lepim razmerjem med notranjim prostorom, zasebnim zunanjim prostorom in prijetnim razgledom, zaradi česar je odlična izbira za bivanje ali dolgoročno naložbo. Stavba se nahaja le 1 km od središča Privlake, kar omogoča hiter dostop do vseh potrebnih ugodnosti. V neposredni bližini se nahajajo klinika, lekarna, trgovine za vsakodnevno nakupovanje in različne restavracije za prijetno druženje. Privlaka je slikovita vasica, ki se nahaja na polotoku v Zadarski županiji. To majhno mesto je znano po svojih naravnih lepotah, dolgih peščenih plažah, čistem morju in bogati kulturni dediščini. Nakup nepremičnine v Privlaki je odlična priložnost za tiste, ki iščejo mirno življenje ob morju, z lahko dostopnimi mestnimi objekti in storitvami. Posredniška provizija za kupca znaša 3 % + DDV in se plača v primeru nakupa nepremičnine, ob sklenitvi prvega pravnega dejanja. ID KODA: 128-81 Za podrobnejše informacije se obrnite na: Nino Fabijan +385 95 504 619 nina@kaiser-immobilien.hr
ID: 1262121