Stanovanje - PRIMOŠTEN - 295.000 EUR
| Lokacija | PRIMOŠTEN, Šibeniško-kninska |
| Cena € | 295.000 |
| Površina | 66 m2 |
| Število sob | 3 |
| Število kopalnic | 1 |
| Oddaljenost od morja | 1400 m |
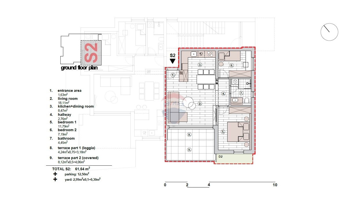
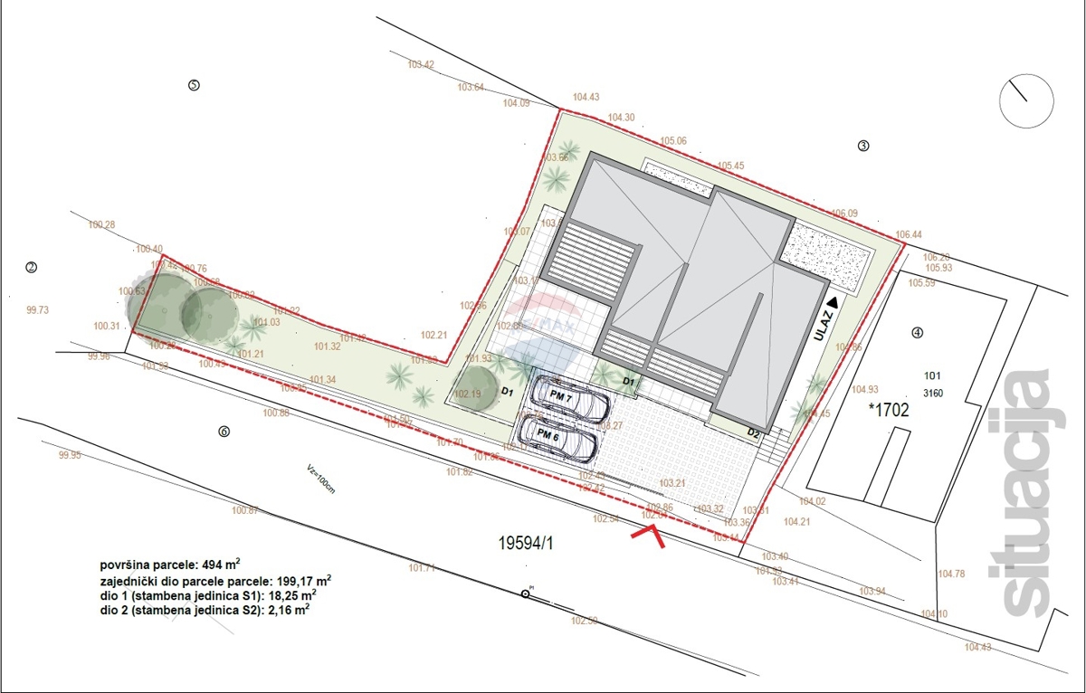
To moderno, luksuzno opremljeno stanovanje se nahaja v pritličju ekskluzivne stanovanjske stavbe s skupno 7 enotami. Nepremičnina se gradi na dvignjeni, mirni lokaciji v Primoštenu, z južno orientacijo in v hoje oddaljenosti od morja in plaže (1400 m). Zaradi svoje lege stanovanja ponujajo mir, zasebnost in čudovit panoramski razgled. Stanovanje S2 – Pritličje, južna orientacija Neto uporabna površina: 66,94 m² Zaprta bivalna površina: 54,4 m² Razporeditev: vhodna dvorana, odprt dnevni prostor s kuhinjo in jedilnico, dve spalnici (7 m² in 12 m²), kopalnica Terasa: 12 m² (preračunano 7,24 m²) Dodatne lastnosti: pokrito zunanje parkirno mesto (12,5 m²) in vrt (3 m², preračunano 5 m²) Gradnja in oprema Stavba je grajena po najvišjih standardih: Konstrukcija: armiranobeton z 10 cm fasado iz kamene volne Zunanje aluminijasto stavbno pohištvo: troslojna zasteklitev, električne rolete, komarniki Varnost: varnostna vhodna vrata Talne obloge: vrhunske keramične ploščice in parket (kupcu je na voljo več možnosti) Oprema: klimatska naprava v vsaki sobi, talno ogrevanje v vseh sobah s keramičnimi ploščicami, parket v spalnicah Časovni načrt gradnje Gradbena dela so trenutno v teku. Predvidena vselitev: konec leta 2026 Kupcem je na voljo možnost sodelovanja pri izbiri zaključnih detajlov in notranje opreme v dogovoru z razvijalcem. Lokacija – Primošten Primošten je eno najlepših majhnih mest v Dalmaciji, ki se nahaja med Šibenikom in Trogirjem in je prejelo naziv Najboljša turistična destinacija 2024. Znano je po slikovitem starem mestnem jedru, polotoku, vinogradih in kristalno čistem morju. Zaliva Velika in Mala Raduča ter pristanišče Primošten so prepoznavni po svoji izjemni naravni lepoti. Razdalje Plaža: 1400 m Center Primoštena: 1500 m Trogir: 30 km Letališče Split: 35 km Trgovina z živili: 400 m Restavracija: 1500 m Lekarna: 400 m Banka: 1500 m Šola: 500 m Ta nepremičnina je odlična izbira za tiste, ki iščejo mirno lokacijo, visokokakovostno gradnjo in možnost prilagoditve notranjosti – idealna tako za stalno prebivališče kot za naložbo v turistični najem. Za dodatne informacije in za dogovor o ogledu nas prosimo kontaktirajte.
ID: 1217146