Stanovanje - POVLJANA - 292.550 EUR
| Lokacija | POVLJANA, PAG, Zadarska |
| Cena € | 292.550 |
| Površina | 80 m2 |
| Število sob | 3 |
| Število kopalnic | 1 |
| Bližina prevoza | DA |
| Oddaljenost od morja | 270 m |
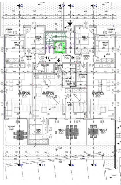
Prodamo apartmaje v stanovanjskem objektu v gradnji 270 m od morja v Povljani na otoku Pagu. Nepremičnino sestavlja 10 stanovanj, razporejenih v kleti, pritličju ter 1. in 2. nadstropju. Predviden zaključek del je do začetka junija 2025. OPIS NEPREMIČNINE: KLET - štiri garaže, trije hodniki, osem shramb PRITLIČJE - S1 (dve spalnici, hodnik, kopalnica, dnevna soba + kuhinja + jedilnica, dve terasi, vrt, shramba v kleti) - 85,18 m2 - 341.300,00 EUR S2 (dve spalnici, hodnik, kopalnica, dnevna soba + kuhinja + jedilnica, terasa, vrt, shramba v kleti) - 87,27 m2 - 322.800,00 EUR S3 (dve spalnici, hodnik, kopalnica, dnevna soba + kuhinja + jedilnica, dve terasi, vrt, shramba v kleti) - 82,09 m2 - 324.100,00 EUR 1. NADSTROPJE - S4 (dve spalnici, hodnik, kopalnica, dnevna soba + kuhinja + jedilnica, dva balkona, shramba v kleti) - 83,20 m2 - 301.200,00 EUR S5 (dve spalnici, hodnik, kopalnica, dnevna soba + kuhinja + jedilnica, balkon, shramba v kleti) - 85,41 m2 - 306.450,00 EUR S6 (dve spalnici, hodnik, kopalnica, dnevna soba + kuhinja + jedilnica, dva balkona, shramba v kleti) - 80,21 m2 - 292.550,00 EUR 2. NADSTROPJE - S7: dvoetažno (tri sobe, dva hodnika, dve kopalnici, dnevna soba + kuhinja + jedilnica, dva balkona, dve garderobi, shramba v kleti, terasa na galeriji) - 122,11 m2 - 439.550,00 EUR S8: dvoetažni (dve spalnici, shramba, dve kopalnici, balkon, hodnik, dnevna soba + kuhinja + jedilnica, shramba v kleti, terasa na galeriji) - 85,36 m2 - 320.400,00 EUR S9: dvoetažni (dve spalnici, shramba, dve kopalnici, balkon, hodnik, dnevna soba + kuhinja + jedilnica, terasa na galeriji) - 85,84 m2 - 309.600,00 EUR S10: dvoetažni (tri spalnice, dva hodnika, dve kopalnici, dnevna soba + kuhinja + jedilnica, dva balkona, dve garderobi, terasa na galeriji) - 122,39 m2 - 428.750,00 EUR Vsakemu stanovanju pripada eno parkirno mesto. Garaža 1 - 36.180,00 EUR Garaža 2 - 67.140,00 EUR Garaža 3 - 44.280,00 EUR Garaža 4 - 80.100,00 EUR Provizija agencije za kupca iznosi 3% + PDV i plaća se u slučaju kupovine nekretnine kod zaključenja kupoprodajnog Ugovora.
ID: 1043099