Stanovanje - POVLJANA - 175.000 EUR
| Lokacija | POVLJANA, PAG, Zadarska |
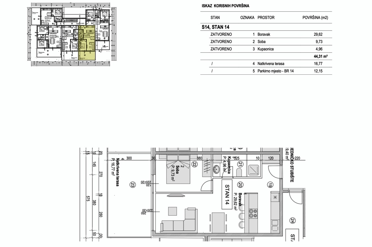
| Cena € | 175.000 |
| Površina | 44 m2 |
| Število sob | 2 |
| Število kopalnic | 1 |
| Bližina prevoza | DA |
| Oddaljenost od morja | 0 m |
Na otoku Pagu, v mirnem in očarljivem kraju Povljana, stoji moderna stanovanjsko-apartmajska stavba s skupno 15 stanovanji. Lokacija je idealna za uživanje v mediteranskem načinu življenja. Stavba se nahaja na odlični lokaciji, le 300 metrov od morja in 500 metrov od urejene plaže, kar zagotavlja popolno ravnovesje med udobjem, eleganco in naravnimi lepotami. Kakovostna gradnja in materiali Nepremičnina je zgrajena z osredotočenostjo na kakovost, trajnost in udobje bivanja. Konstrukcija je armirano-betonska, izjemne statične stabilnosti, notranje pregradne stene pa so izvedene iz blok opeke. Fasada je toplotno in vodoodporno izolirana z 10 cm stiropora, kar zagotavlja visoko energetsko učinkovitost. Gretje in hlajenje je zagotovljeno preko klimatskih naprav znamke Bosch v vsakem prostoru. Stanovanja so opremljena z protivlomnimi in protipožarnimi vhodnimi vrati, PVC dvoslojno stavbno pohištvo ter keramičnimi tlemi. Predvidena energetska izkaznica je razreda A. Atraktivna lokacija Stanovanje se nahaja na izjemno ugodni in mirni lokaciji, le nekaj minut hoje od morja in centra Povljane. Iz stanovanja je razgled na morje, otok Vir in širši del kraja. Povljana je prijeten in družinsko usmerjen kraj, ki nudi vse potrebno za kakovostno bivanje in vsakodnevno življenje, vključno z pošto, ambulanto, šolo, trgovinami, pekarnami, slaščičarnami in marino za manjša plovila. Povljana kot spoj mediteranske čarobnosti in sodobnega udobja Povljana je slikovito obalno naselje na otoku Pagu, znano po kristalno čistem morju ter lepih prodnatih in peščenih plažah. Kraj očara s spojem tradicionalne dalmatinske arhitekture in sodobnega načina življenja. Ob bogati gastronomski ponudbi, kjer izstopata paški sir in vrhunska jagnjetina, Povljana ponuja številne možnosti za sprostitev in rekreacijo. Ljubitelji narave lahko raziskujejo skrite zalive in nedotaknjene plaže, idealne za pobeg pred gnečo in popoln mir. Otok Pag je odlično povezan s celino. Trajektne linije vozijo skozi ves dan, medtem ko Paški most omogoča dostop z avtomobilom brez trajekta. Letališče Zemunik v Zadru je oddaljeno približno 1 uro vožnje, hitre ladijske linije pa povezujejo Novaljo z Reko, Rabom in Lošinjem. Lastništvo je urejeno in brez bremen. Ta nepremičnina predstavlja odlično priložnost za prijetno bivanje, počitnice ali dolgoročno naložbo, zahvaljujoč kakovostni gradnji, atraktivni lokaciji in bližini morja. OPIS STANOVANJA: Stanovanje S9 - 1. nadstropje - bivalna površina 44,31 m2 (1 spalnica + kopalnica) + pokrita terasa (16,77 m2 - JV) + zunanji parkirni prostor PM09, skupna neto površina 55,13 m2 = 175.000 EUR Datum vselitve: 06/2026 Kupec ne plača agencijske provizije Za dodatne informacije in dogovor glede ogleda nas prosimo kontaktirajte.
ID: 1249599