Stanovanje - POVILE - 480.000 EUR
| Lokacija | POVILE, NOVI VINODOLSKI, Primorsko-goranska |
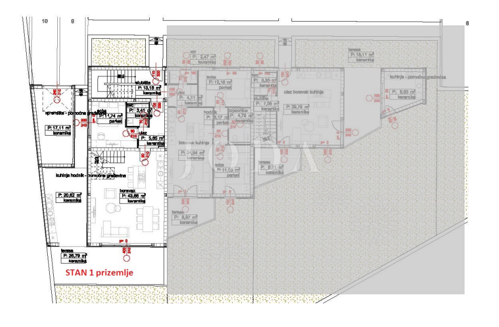
| Cena € | 480.000 |
| Površina | 146 m2 |
| Število sob | 4 |
| Površina parcele | 80 m2 |
| Število kopalnic | 2 |
| Oddaljenost od morja | 250 m |
Na 250 metrih od plaže se je začela gradnja stavbe s 6 apartmaji. Stavba je dvignjena od glavne ceste in ponuja pogled na morje že iz pritličja. Vsi apartmaji imajo lastno parkirno mesto, možen pa je tudi nakup garaže. Lastniška pritlična stanovanja imajo del vrta pred samim stanovanjem, medtem ko imajo vsa stanovanja v nadstropju balkone in terase. Stavba je dokončana po načelu „na ključ“, v fazi gradnje pa obstaja možnost izbire talnih oblog in nekaterih popravkov notranjosti. Načrtovani zaključek del in vselitev konec leta 2025. Investitor (ki ima za seboj že več objektov) je resen z zagotovljenimi sredstvi za dokončanje gradnje.
ID: 1129906