Stanovanje - POVILE - 385.000 EUR
| Lokacija | POVILE, NOVI VINODOLSKI, Primorsko-goranska |
| Cena € | 385.000 |
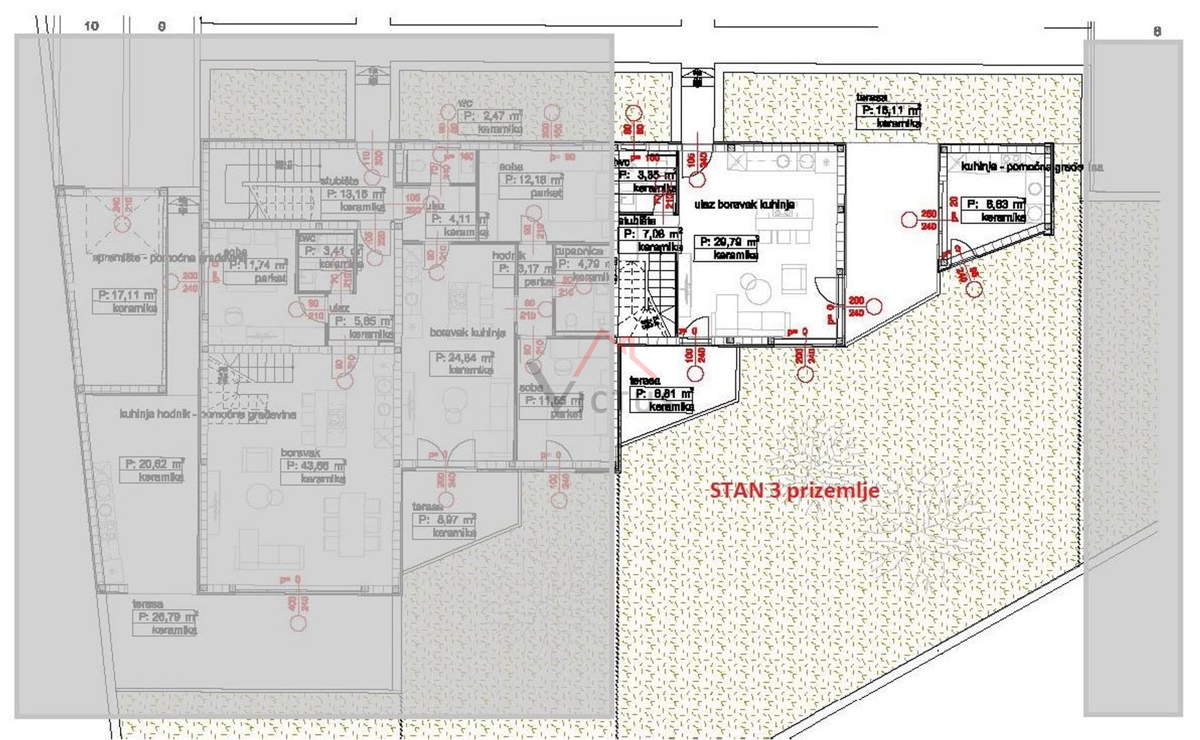
| Površina | 78 m2 |
| Število sob | 3 |
| Število kopalnic | 1 |
| Bližina prevoza | DA |
| Blizu plaže | DA |
| Oddaljenost od morja | 0 m |
Dvoetažni stan v objektu v fazi gradnje, ki se nahaja na ravni pritličja in 1. nadstropja, umeščen 250 metrov od morja. Neto površine 78 m2, sestavlja dnevna soba s kuhinjo in jedilnico, dve spalnici, stopnišče, kopalnica in gostinska toaleta. Stanovanju prav tako pripada poletna kuhinja površine 9 m2, terase površine 9 m2 in 16 m2, balkon v nadstropju površine 8 m2, dvorišče površine 170 m2 ter parkirno mesto. Možnost nakupa garaže površine 17 m2. Načrtovani zaključek del je konec leta 2025. Objekt se nahaja na povišani lokaciji, s katere se razprostira pogled na morje z vseh ravni. Prosto nas kontaktirajte za vse dodatne informacije.
ID: 1151374