Stanovanje - POVILE - 310.000 EUR
| Lokacija | POVILE, NOVI VINODOLSKI, Primorsko-goranska |
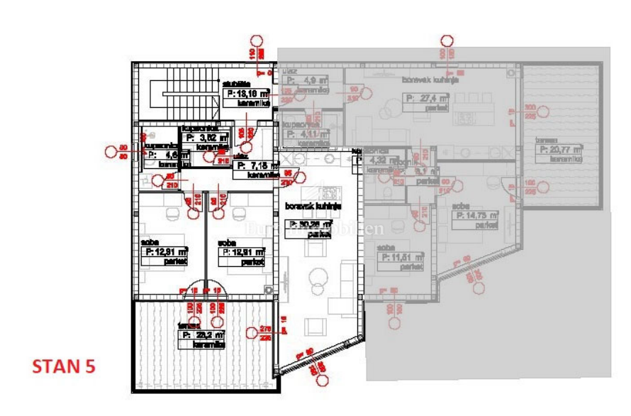
| Cena € | 310.000 |
| Površina | 80 m2 |
| Število sob | 3 |
| Število kopalnic | 2 |
| Oddaljenost od morja | 250 m |
Na razdalji 250 metrov od plaže se gradi sodoben objekt s skupno šestimi stanovanji. Zgradba je dvignjena nad glavno cesto in ponuja pogled na morje že iz pritličja. Vsako stanovanje ima lastno parkirno mesto, z možnostjo nakupa garaže. Pritlična stanovanja imajo svoj del vrta, medtem ko imajo stanovanja v nadstropjih balkone in prostorne terase. Objekt se prodaja po principu na ključ, kupci pa lahko med gradnjo izbirajo talne obloge in dogovorijo določene spremembe interierja. Predviden zaključek gradnje in vselitev je konec leta 2025. Investitor je preverjen in zanesljiv, z že več uspešno zaključenimi projekti in zagotovljenimi sredstvi za dokončanje gradnje. Provizija agencije za kupca iznosi 3% + PDV i plaća se u slučaju kupovine nekretnine kod zaključenja kupoprodajnog Ugovora.
ID: 1238690