Stanovanje - POTOČNICA - 395.000 EUR
| Lokacija | POTOČNICA, NOVALJA, Ličko-senjska |
| Cena € | 395.000 |
| Površina | 104 m2 |
| Število sob | 3 |
| Površina parcele | 77 m2 |
| Število kopalnic | 3 |
| Oddaljenost od morja | 200 m |
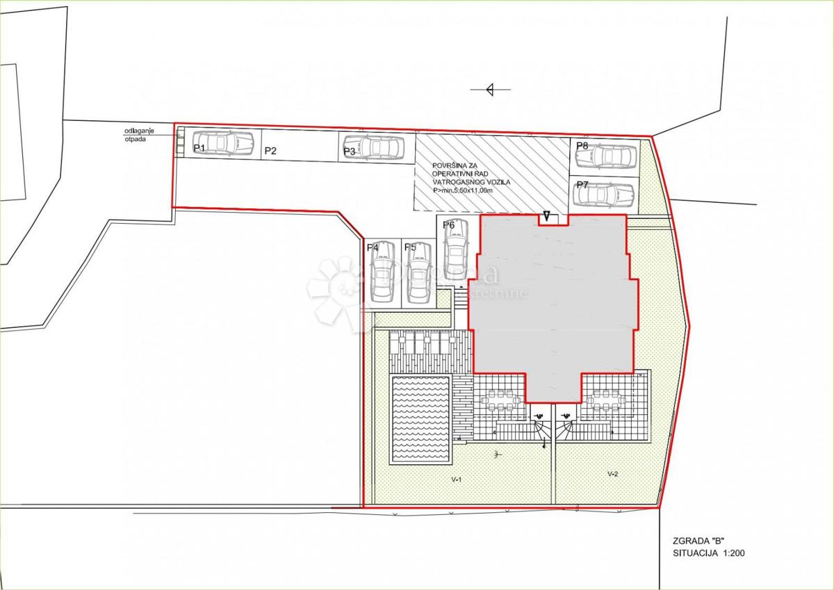
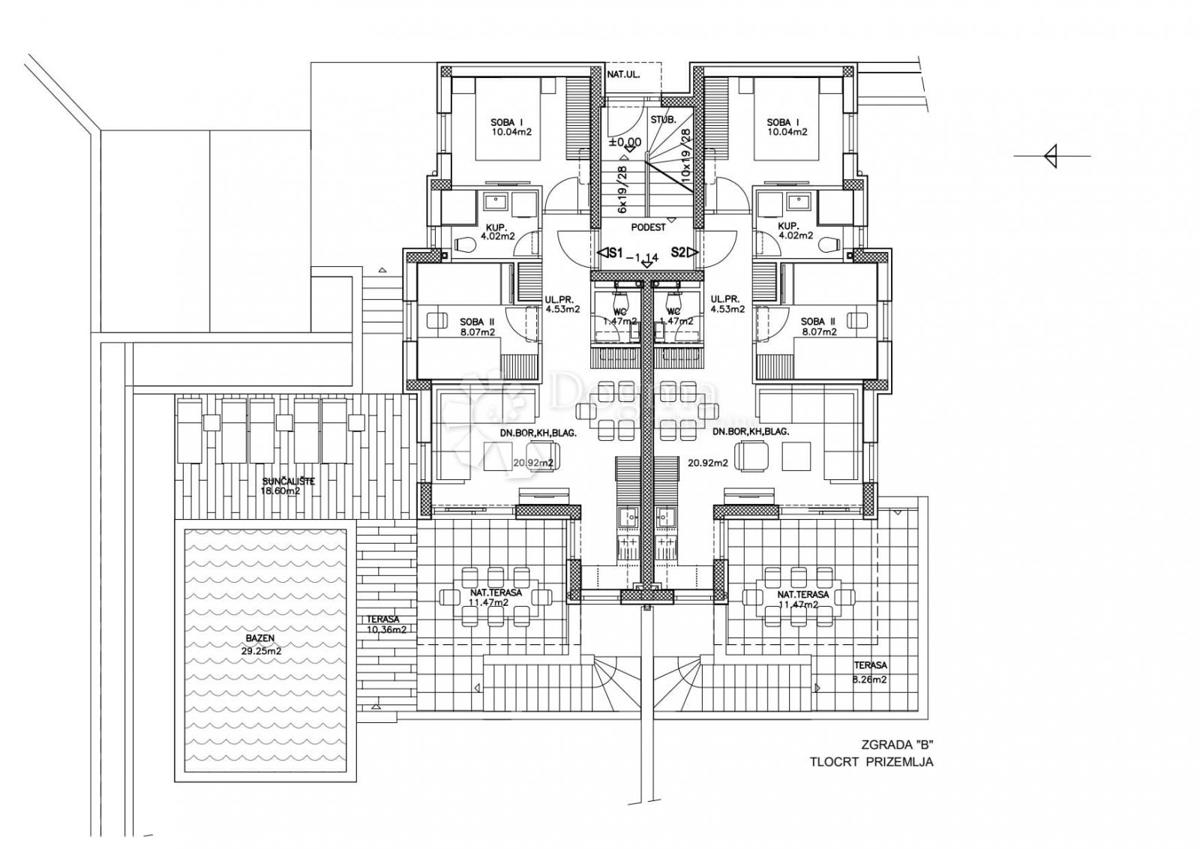
PRODAMO – NOVOGRADNJA – STANOVANJE S2 Z DVORIŠČEM IN KLETJO V NEPOSREDNI BLIŽINI MORJA Proda se moderno stanovanje S2 v pritličju moderne hiše s skupno 5 stanovanji. Ta nepremičnina združuje udobje, zasebnost in vrhunsko opremo, dodatno vrednost pa predstavlja prostorno dvorišče in velika klet. Osnovne informacije: – Lokacija: otok Pag, okolica Lunj – Površina stanovanja: 104,10 m² – Dvorišče: veliko in prostorno – Nadstropje: pritličje + klet – Status: novogradnja Razpored prostorov: PRITLIČJE: – Glavna spalnica z lastno kopalnico (ensuite) – Dodatna spalnica – Prostoren dnevni prostor s kuhinjo in jedilnico – Gostinski WC – Izhod na teraso in dvorišče KLET: – Velika klet (idealna za druženja, wellness, fitnes...) – Kopalnica Oprema in materiali: – Vhodna vrata: Mitra protivlomna in protipožarna – Notranja vrata: MDF, skriti tečaji, dizajnerske DND kljuke – Okna: troslojna stekla, električne rolete, mreže proti komarjem – Talne obloge: parket Bjelin v sobah, italijanska keramika 60x120 v ostalih prostorih – Ogrevanje/hlajenje: električno talno ogrevanje, Daikin klimatske naprave v vseh sobah in dnevnem prostoru – Sanitarna oprema: Geberit WC školjke, Hansgrohe armature in tuši, kaljeno steklo debeline 8 mm v tuš kabinah Ta nepremičnina je idealna za družine ali kot investicija za počitnice/turizem, zaradi izjemne lege, zasebnosti, luksuzne opreme in visokega gradbenega standarda. OPOMBA: KUPEC NE PLAČA DAVKA NA PROMET NEPREMIČNIN – NOVOGRADNJA! Za več informacij in dogovor o ogledu nas prosim kontaktirajte. ILIJA RAČUNICA – DOGMA DALMACIJA Mob/WhatsApp: +385 91 4957 567 Email: ilija.racunica@dogma-nekretnine.com PRIMOŽ DEMŠAR – DOGMA SLOVENIJA Mob/WhatsApp: +386 40 605 571 Email: primoz.demsar@dogma-nepremicnine.si
ID: 1217905