Stanovanje - POREČ - 675.000 EUR
| Lokacija | POREČ, Istrska |
| Cena € | 675.000 |
| Površina | 161 m2 |
| Število sob | 3 |
| Število kopalnic | 3 |
| Bližina prevoza | DA |
| Blizu plaže | DA |
| Oddaljenost od morja | 1500 m |
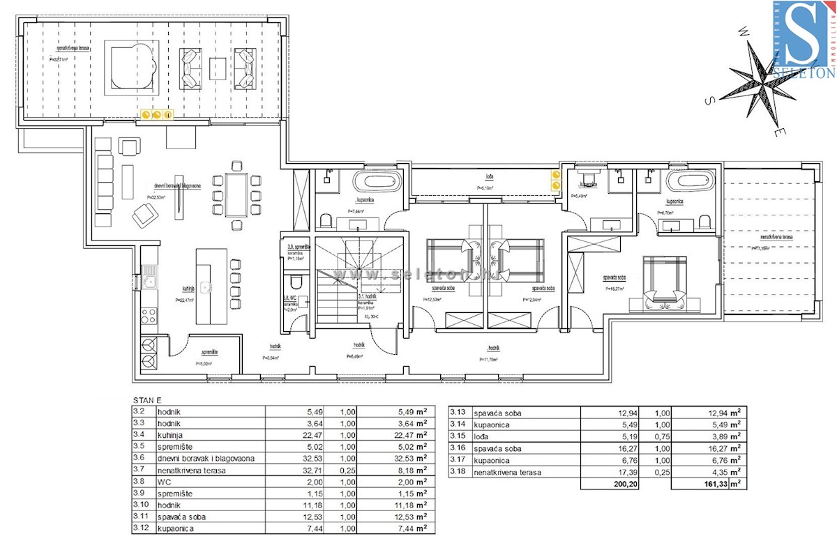
Poreč, v mirnem urbanem okolju, se prodaja novo stanovanje s površino 161,54 m², sestavljeno iz dnevne sobe, velike terase 32 m² s pogledom na morje, kuhinje, jedilnice, 2 dodatnih terase, hodnik, 3 spalnici - vsaka s svojo kopalnico in izhodom na teraso, shramba in wc. Stanovanje se nahaja v drugem nadstropju stavbe s skupno 5 stanovanjskimi enotami, orientirano je proti jugu, kar zagotavlja veliko naravne svetlobe. Stanovanje ima 4 klimatske naprave Mitsubishi Electric (v dnevni sobi in spalnicah), talno ogrevanje po celotnem stanovanju (toplotna črpalka), topla voda se pripravlja tudi s toplotno črpalko s 175-litrskim rezervoarjem, ima tudi protivlomna vhodna vrata, PVC okna s tremi stekli, komarnike in električne rolete in 2 parkirni mesti pred stavbo. Stanovanje se nahaja v slepi ulici z malo prometa, 500 m od postaje javnega prevoza, 1,5 km od morja/plaže in 3 km od centra Poreča. Energijski razred "A". Vseljivo: 31.05.2026. OPOMBA: Kupec ne plača davka pri nakupu nepremičnine v višini 3% od kupnine. Spoštovane stranke, nepremičnino si je mogoče ogledati izključno s podpisano Posredniško pogodbo, ki je podlaga za nadaljnje postopke v zvezi s kupoprodajo in plačilom provizije, vse v skladu z Zakonom o posredovanju v prometu nepremičnin. V primeru odločitve za nakup nepremičnine znaša posredniška provizija 3% + DDV in se zaračuna ob sklenitvi Predpogodbe ali Kupoprodajne pogodbe. Za morebitne napake v opisih nepremičnin ne odgovarjamo, si pa prizadevamo, da so ti čim bolj natančni in točni.
ID: 1262011