Stanovanje - POREČ - 649.000 EUR
| Lokacija | POREČ, Istrska |
| Cena € | 649.000 |
| Površina | 200 m2 |
| Število sob | 4 |
| Število kopalnic | 2 |
| Oddaljenost od morja | 0 m |
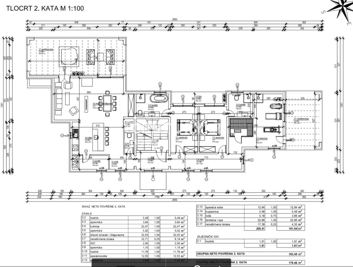
POREČ, EKSKLUZIVNI PENTHOUSE S POGLEDOM NA MORJE IN 500 METROV OD MORJA IN PLAŽE V mirni in lepi vasici le 1,5 km od centra Poreča, prodamo ta luksuzni penthouse (C-E) v drugem nadstropju edinstvene stavbe atraktivne in moderne arhitekture s skupno 5 stanovanji. Skupna neto uporabna površina penthousea/stanovanja je 200,41 m2. Sestavljen je iz hodnika, dnevne sobe in jedilnice odprtega tipa s površino 32,71 m2, kuhinje s površino 22,47 m2, dveh spalnic (udobne in prostorne), lože s površino 5,19 m2, dve kopalnici, hodnik/komunikacijski prostor, WC, shramba površine 8,66 m2, ter dve nepokriti terasi 32,71 m2 in 17,39 m2, na katere se lahko dostopa iz dnevne sobe in iz katerih pogled na morje, telovadnica in spa z jacuzzijem 22,66 m2 spet z enkratnim pogledom na morje. Stanovanju pripadata dve parkirni mesti. Stanovanje je zgrajeno iz kvalitetnih gradbenih materialov, zunanje ALU pohištvo, troslojna stekla, električne žaluzije in komarniki, kvalitetno notranje pohištvo priznanega italijanskega proizvajalca s skritimi okovi, talno gretje, klimatizacija, keramika in parket pri. po izbiri stranke, domofon z monitorjem, protivlomna vrata, talno ogrevanje s toplotno črpalko. Za objekt so značilne velike steklene površine, tako da so stanovanja polna dnevne svetlobe. Cena stanovanja je z DDV, prodaja pa se na ključ, kar vključuje popolnoma opremljeno in vseljivo nepremičnino brez pohištva. Predviden zaključek del je junij 2025. leto. Ta moderno zasnovan objekt se nahaja le 1500 m od centra Poreča in le 500 m od urejenih plaž in morja, v bližini vseh pomembnih objektov (urejene plaže, športno rekreacijski objekti, restavracije, pekarne, trgovine, itd.) je njegova atraktivna lokacija idealna priložnost za vse tiste, ki iščejo nepremičnino v bližini morja in centra mesta, primerno tako za stanovanje kot za oddajanje v turistične namene v polnem potencialu. Kupec ne plača davka na promet nepremičnin v višini 3%.
ID: 1118978