Stanovanje - POREČ - 580.000 EUR
| Lokacija | POREČ, Istrska |
| Cena € | 580.000 |
| Površina | 158 m2 |
| Število sob | 4 |
| Površina parcele | 106 m2 |
| Število kopalnic | 4 |
| Oddaljenost od morja | 0 m |
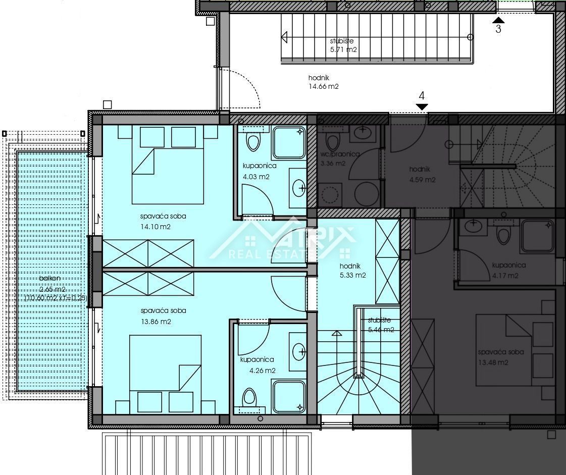
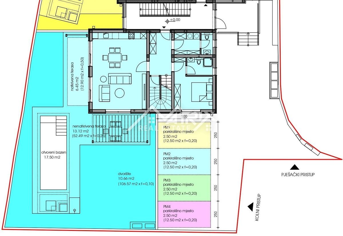
Poreč, okolica - Moderno stanovanje z bazenom v bližini morja in centra! Pogled na morje! Dobrodošli v tem čudovitem apartmaju s skupno bivalno površino 158 m2, ki se nahaja na čudoviti lokaciji v bližini morja in centra mesta na čudoviti zahodni obali Istre. Stanovanje se nahaja v stavbi s samo 4 stanovanji, na zanimivi lokaciji, ki idealno združuje mirno okolje, bližino obale in enostaven dostop do vseh ugodnosti, potrebnih za vsakdanje življenje. Stanovanje je dvonadstropno in se nahaja v pritličju in prvem nadstropju te čudovite urbane vile. V pritličju je velik odprt prostor, ki združuje kuhinjo, jedilnico in dnevno sobo z dostopom do terase zunanjega bazena skozi velike steklene stene, ki omogočajo veliko naravne dnevne svetlobe. V pritličju se nahajajo tudi spalnica z lastno kopalnico, pralnica in stranišče za goste. Notranje stopnišče vodi v prvo nadstropje, kjer se poleg prostornega hodnika z garderobno omaro nahajata dve spalnici, vsaka s svojo kopalnico in dostopom do pokrite terase s čudovitim odprtim razgledom na morje in naravo. Stanovanje se prodaja neopremljeno, vključno z vgrajeno kopalnico. Osrednji del prostornega vrta predstavlja 17,5 m2 velik bazen s prostorom za sončenje in pokriti del terase, ki je zasnovan kot zunanji jedilni prostor. Na preostalem delu vrta bo položena trata. Poleg tega stanovanju pripada zunanje nepokrito parkirno mesto in dodaten prostor za shranjevanje, ki se nahaja v kleti stavbe. Za hlajenje v stanovanju se uporabljajo klimatske naprave, za maksimalno udobje pa je v dnevni sobi in kopalnicah nameščeno električno talno ogrevanje. Na vseh večjih odprtinah so nameščene električne žaluzije. Stanovanja so trenutno v zaključni fazi gradnje, vselitev pa je predvidena do sredine leta 2024. Pri nakupu nepremičnine je kupec oproščen plačila davka na promet nepremičnin. To stanovanje ponuja idealen dom za vse, ki si želijo razkošnega in sproščujočega življenjskega sloga v čudovitem okolju. Ne glede na to, ali iščete miren zatočišče, kjer se lahko umaknete od vrveža vsakdanjega življenja, ali pa želite investirati, bo ta nepremičnina zagotovo izpolnila in presegla vsa vaša pričakovanja.
ID: 1260535