Stanovanje - POREČ - 529.919 EUR
| Lokacija | POREČ, Istrska |
| Cena € | 529.919 |
| Površina | 112 m2 |
| Število sob | 2 |
| Število kopalnic | 1 |
| Oddaljenost od morja | 0 m |
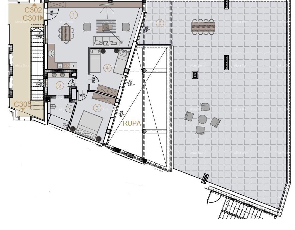
Zgradba stanovanjsko-poslovne namene je razdeljena na tri enote: centralno, južno in severno, s posebnim poudarkom na ureditvi zelenih površin. Stanovanja se prodajajo po sistemu "ključ v roke", kar vključuje: Popolnoma opremljeno kopalnico (pohištvo in sanitarije), Talne obloge v vseh prostorih (keramika 1. razreda, laminat), Izvedene elektroinštalacije in vgrajena klimatska naprava, Notranjo in zunanjo PVC/ALU stavbno pohištvo, Protivlomna in protipožarna vhodna vrata, Antenski sistem in UTP omrežje, Bele stene in stropove. Stanovanje C301, s površino 253,93 m² (neto površina 112,39 m²), se nahaja v 3. nadstropju centralne enote stavbe. Sestavlja ga: hodnik in predsoba, kuhinja, jedilnica in dnevna soba, 1 kopalnica, 2 spalnici ter velika odprta terasa, idealna za uživanje na prostem. Opomba: Garažno parkirno mesto in shramba se kupita posebej. Za dodatne informacije prosimo kontaktirajte: Azra +385 91 611 5706 +385 98 420 885 azra@almadominvest.com
ID: 1274793