Stanovanje - POREČ - 515.000 EUR
| Lokacija | POREČ, Istrska |
| Cena € | 515.000 |
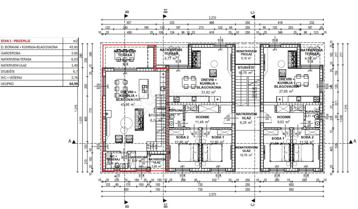
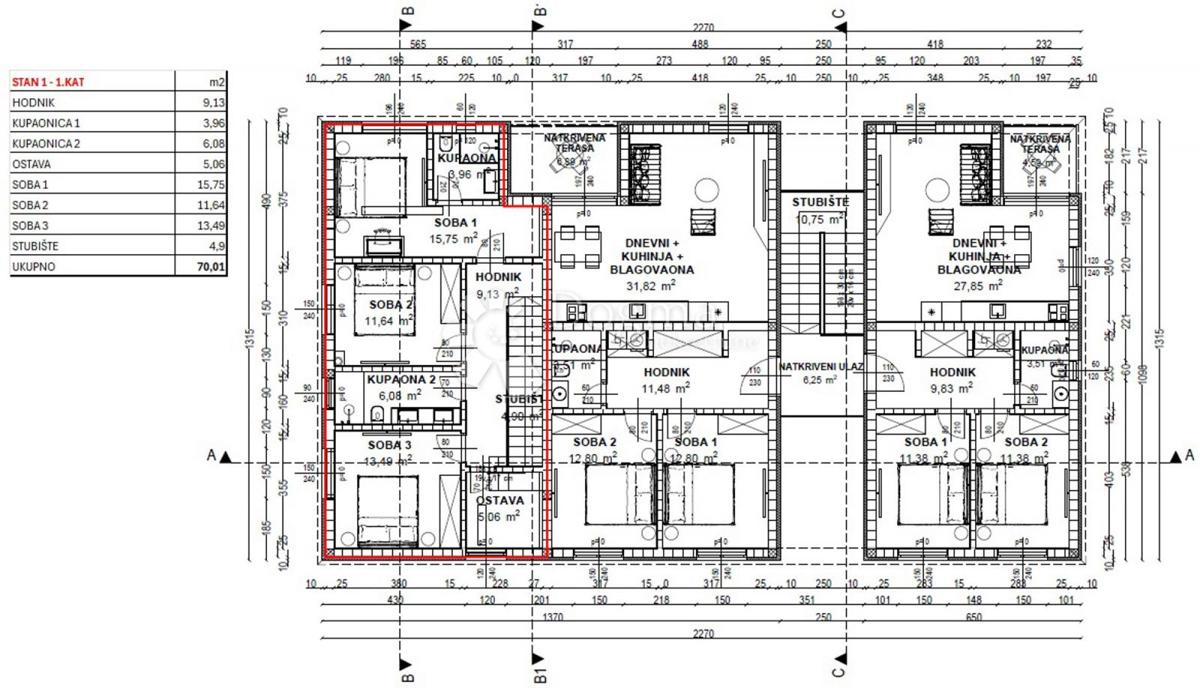
| Površina | 135 m2 |
| Število sob | 4 |
| Površina parcele | 200 m2 |
| Število kopalnic | 3 |
| Oddaljenost od morja | 2000 m |
POREČ - Dvostanovanjsko stanovanje z 200 m2 vrta Naprodaj je dvostanovanjsko stanovanje v novogradnji v Poreču, nekaj minut vožnje od centra, s površino 135 m2 plus 200 m2 vrta. Stavba ima le 5 stanovanjskih enot. Stanovanje ima vhodno dvorano, tri spalnice, dve kopalnici, pralnico z WC-jem, dnevno sobo, kuhinjo in jedilnico v enem odprtem prostoru z dostopom do pokrite terase in vrta. Po celotnem stanovanju je nameščeno talno ogrevanje, nameščene pa so tudi klimatske naprave. Vse potrebne ugodnosti za življenje so v nekaj minutah vožnje, vključno s šolo, vrtcem, trgovino, bari, restavracijami, tržnico in kliniko. Stanovanju pripadajo tri parkirna mesta pred stavbo in 5 m2 shrambe. Predstavlja dobro investicijsko priložnost za mirno in kakovostno družinsko življenje v bližini mesta. Gradnja se začne 9/2025, predviden zaključek 12/2026. Za vse informacije in ogled se obrnite na Marijo Šantor, agentko z mobilnim dovoljenjem. 0922827379 marija.santor@dogma-nekretnine.com
ID: 1220996