Vse nepremičnine
Hiše
Stanovanja
Parcele
Poslovni prostori
Regija
...
Zagrebška
Krapinsko-zagorska
Sisačko-moslavačka
Karlovška
Varaždinska
Koprivniško-križevska
Bjelovarsko-bilogorska
Primorsko-goranska
Ličko-senjska
Virovitiško-podravska
Požeško-slavonska
Brodsko-posavska
Zadarska
Osiješko-baranjska
Šibeniško-kninska
Vukovarsko-sremska
Splitsko-dalmatinska
Istrska
Dubrovniško-neretvanska
Međimurska
Mesto Zagreb
Mesto
...
NOVIGRAD
POREČ
VIŠNJAN
UMAG
VIŽINADA
BALE
ŽMINJ
BARBAN
MEDULIN
KANFANAR
ROVINJ
BUJE
BUZET
LABIN
GRAČIŠĆE
MARČANA
PAZIN
SVETVINČENAT
GROŽNJAN
KRŠAN
LUPOGLAV
CEROVLJE
TINJAN
LANIŠĆE
RAŠA
MOTOVUN
BRTONIGLA
SVETA NEDELJA
KAŠTELIR - LABINCI
OPRTALJ
SVETI LOVREČ
PULA
FAŽANA
FUNTANA
VODNJAN
LIŽNJAN
PIĆAN
KAROJBA
SVETI PETAR U ŠUMI
TAR-VABRIGA
VRSAR
Mesto
...
ANTONCI
BADERNA
BANKI
BAŠARINKA
BONACI
BRATOVIĆI
BRČIĆI
BUIĆI
CANCINI
ČERVAR-PORAT
ČRVAR
DRAČEVAC
FILIPINI
FRATA
FUŠKULIN
GARBINA
GEDIĆI
JAKIĆI GORINJI
JASENOVICA
JEHNIĆI
JURIĆI
KADUMI
KATUN
KIRMENJAK
KOSINOŽIĆI
KUKCI
LADROVIĆI
MATULINI
MIHATOVIĆI
MIHELIĆI
MUGEBA
MUŠALEŽ
NOVA VAS
PERCI
POREČ
RADMANI
RAKOVCI
ROŠINI
RUŽIĆI
STRANIĆI KOD NOVE VASI
ŠTIFANIĆI
ŠUŠNJIĆI
VALKARIN
VRVARI
VRŽNAVERI
ŽBANDAJ
Tip
Vse
Hiše
Stanovanja
Parcele
Poslovni prostori
Cena
od
do
Oddaljenost od morja (m)
od
do
Sort
Novejši
Starejši
Cenejši
Dražji
Poišči
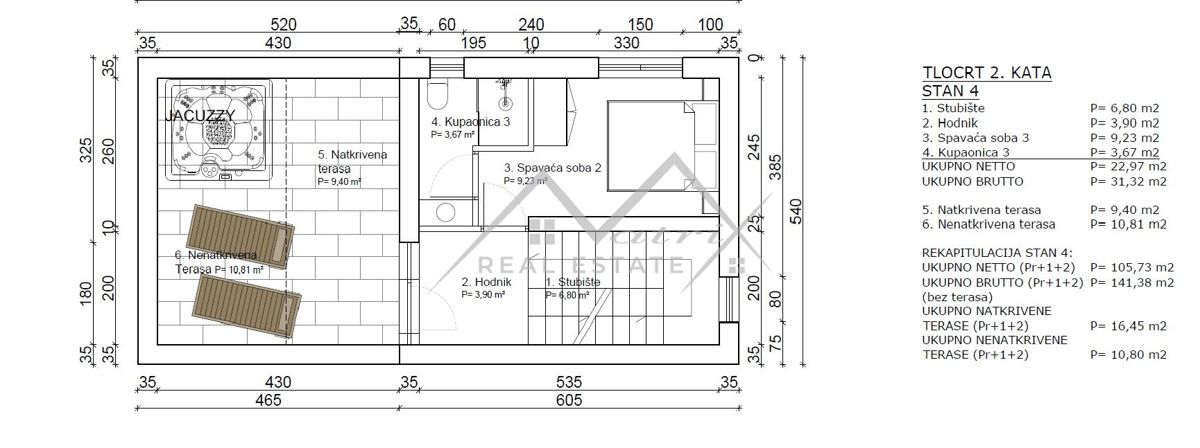
Stanovanje - POREČ - 505.000 EUR
Previous
Next
Lokacija
POREČ, Istrska
Cena €
505.000
Površina
125 m
2
Število sob
4
Površina parcele
40 m
2
Število kopalnic
4
Bližina prevoza
DA
Oddaljenost od morja
800 m
ID: 1075054
Pošlji sporočilo
Ime
E-mail
Telefon
8 + 4 =
Sporočilo
Pošlji
Opusti