Stanovanje - POREČ - 475.000 EUR
| Lokacija | POREČ, Istrska |
| Cena € | 475.000 |
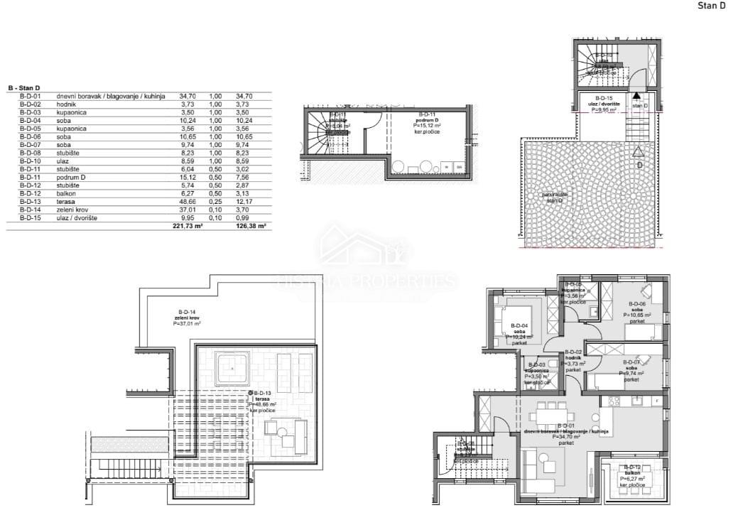
| Površina | 126 m2 |
| Število sob | 4 |
| Število kopalnic | 2 |
| Bližina prevoza | DA |
| Oddaljenost od morja | 1500 m |
Na iskani lokaciji v zaželeni soseski, blizu čudovitih plaž, se prodaja to odlično stanovanje s strešno teraso, zasebnim vhodom in kletjo. Stanovanje je sestavljeno iz manjšega hodnika z garderobno omaro, ki nas vodi v prostorno dnevno sobo s kuhinjo in jedilnico ter dostopom do terase. Po celotni dnevni sobi so nameščene steklene stene, kar omogoča velik dotok svetlobe. Stanovanje ima tudi 3 spalnice, kopalnico, dodatno stranišče in klet. Notranje stopnišče vodi na strešno teraso z vsemi inštalacijami za namestitev jacuzzija, letne kuhinje in pergole za dodatno zaščito pred soncem ter zelenim pasom za popolno naravno vzdušje na višini. Stanovanju pripadata 2 parkirni mesti na dvorišču, ki sta povezani z ločenim vhodom, ki ga bo uporabljalo samo to stanovanje, kar novim lastnikom omogoča zasebnost in mir ter ločenost od drugih najemnikov. Celotno stanovanje ima talno ogrevanje s toplotno črpalko in prvo fazo za klimatsko napravo. DDV je vključen v ceno stanovanja in kupec ne plača davka na nepremičnine. Odlična lokacija za ljudi, ki prepoznajo pravo priložnost in so kakovost idealna naložba za kakovostno in prijetno bivanje. Ogled nepremičnine je možen le s podpisano pogodbo o posredovanju, ki je podlaga za nadaljnja dejanja v zvezi s kupoprodajo in plačilom provizije v skladu z Zakonom o posredovanju v prometu z nepremičninami. Pri kupoprodaji znaša posredniško nadomestilo 3 % brez DDV in se zaračuna kupcu in prodajalcu ob sklenitvi predpogodbe/kupoprodajne pogodbe.
ID: 1239146