Stanovanje - POREČ - 450.000 EUR
| Lokacija | POREČ, Istrska |
| Cena € | 450.000 |
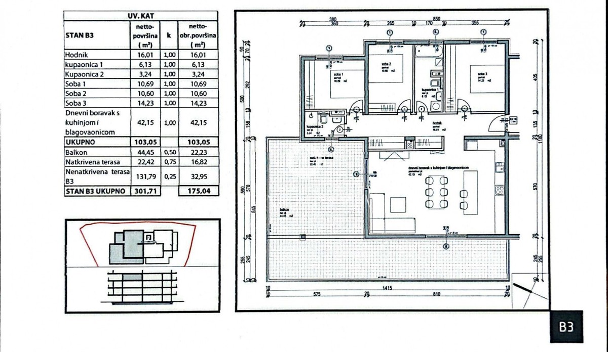
| Površina | 175 m2 |
| Število sob | 4 |
| Število kopalnic | 2 |
| Oddaljenost od morja | 1000 m |
Istra, okolica Poreča Na prodaj je ekskluziven penthouse v 3. nadstropju nove stanovanjske stavbe z dvigalom, le 1 km od morja, v urejenem kraju, ki nudi vse potrebne vsebine za udobno in kakovostno bivanje. Penthouse je izjemno prostoren in odlično razporejen ter opremljen z visokokakovostnimi, skrbno izbranimi materiali, ki zagotavljajo trajnost, funkcionalnost in visok bivalni standard. Ima skupno neto površino 175,04 m² in obsega vhodni hodnik, tri spalnice, dve kopalnici, kuhinjo z jedilnico ter prostorno dnevno sobo z izhodom na pokrito teraso s pogledom na morje, ki nudi dodatno udobje bivanja. Posebno vrednost nepremičnini daje prostorna strešna terasa velikosti 131 m², ki ponuja številne možnosti za ureditev zasebne cone za sprostitev, druženje ali uživanje v čudovitem pogledu na morje. Ogrevanje in hlajenje sta urejena s klimatskimi napravami, v dnevni sobi, jedilnici, kuhinji in kopalnicah pa je vgrajeno električno talno ogrevanje. Penthouseu pripadata shramba in eno parkirno mesto. Nepremičnina je idealna za reševanje stanovanjskega vprašanja ali kot dolgoročna investicija.Ogled nepremičnine je možen s podpisano pogodbo o posredovanju, ki je podlaga za nadaljnje ukrepanje v zvezi s prodajo in provizijo v skladu z Zakonom o posredovanju v prometu z nepremičninami. Pri prodaji znaša agencijska provizija 3% + DDV in se obračuna ob sklenitvi predpogodbe/prodajne pogodbe.
ID: 1244908