Stanovanje - POREČ - 435.000 EUR
| Lokacija | POREČ, Istrska |
| Cena € | 435.000 |
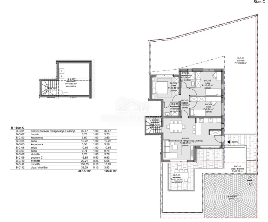
| Površina | 106 m2 |
| Število sob | 4 |
| Število kopalnic | 2 |
| Bližina prevoza | DA |
| Oddaljenost od morja | 1500 m |
To pritlično stanovanje z dvoriščem, zasebnim vhodom in kletjo se nahaja na iskani lokaciji v družinskem naselju z modernimi stavbami. Stanovanje je sestavljeno iz manjšega hodnika z garderobno omaro, ki nas vodi v prostorno dnevno sobo s kuhinjo in jedilnico ter izhodom na teraso in sprednje dvorišče, ki obdaja to stanovanje. Po celotni dnevni sobi so nameščene steklene stene, ki omogočajo velik dotok svetlobe. Stanovanje ima tudi 3 spalnice z izhodi na zadnje dvorišče, kopalnico, dodatno stranišče in klet. Stanovanju pripadata 2 parkirni mesti na dvorišču, ki sta povezani z ločenim vhodom, ki ga bo uporabljalo samo to stanovanje, kar novim lastnikom omogoča zasebnost in mir ter ločenost od drugih najemnikov. Celotno stanovanje ima talno ogrevanje s toplotno črpalko in prvo fazo za klimatsko napravo. DDV je vključen v ceno stanovanja in kupec ne plača davka na nepremičnine. Odlična lokacija za ljudi, ki prepoznajo pravo priložnost in kakovost, sta idealna naložba za kakovostno in udobno bivanje. Ogled nepremičnine je možen le s podpisano pogodbo o posredovanju, ki je podlaga za nadaljnja dejanja v zvezi s kupoprodajo in plačilom provizije v skladu z Zakonom o posredovanju v prometu z nepremičninami. Pri kupoprodaji znaša posredniško nadomestilo 3 % brez DDV in se zaračuna kupcu in prodajalcu ob sklenitvi predpogodbe/kupoprodajne pogodbe.
ID: 1239145