Stanovanje - POREČ - 395.000 EUR
| Lokacija | POREČ, Istrska |
| Cena € | 395.000 |
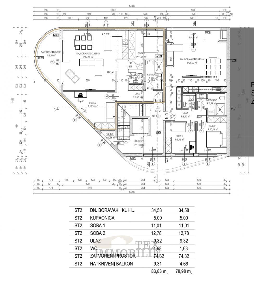
| Površina | 79 m2 |
| Število sob | 3 |
| Število kopalnic | 2 |
| Oddaljenost od morja | 2000 m |
Naprodaj je stanovanje neto površine 79 m², ki se nahaja v tretjem nadstropju novogradnje v mirnem okolju blizu Poreča, le nekaj minut vožnje od morja in mestne infrastrukture. Stanovanje je del modernega stanovanjsko-poslovnega objekta z dvanajstimi stanovanjskimi enotami in dvema poslovnima prostoroma, razporejenimi v pritličju in treh nadstropjih. Notranji tloris obsega svetel dnevni prostor povezan s kuhinjo in jedilnico, dve spalnici, moderno kopalnico, ločeno stranišče ter prostorno teraso z lepim pogledom na morje. Stanovanju pripadata tudi dve zunanji parkirni mesti. Stavba bo opremljena z dvigalom, stanovanja pa s kakovostnim PVC stavbnim pohištvom s šestimi komorami, troslojnim steklom, komarniki in električnimi roletami. Predvidena je vgradnja protivlomnih vhodnih vrat, video domofona, talnega ogrevanja v vseh prostorih preko toplotnih črpalk in klimatskih naprav v vsakem prostoru. Keramika prvega razreda se izbira po želji kupca, kar omogoča visoko stopnjo personalizacije. Zaključek del, uporabno dovoljenje in etažacija so predvideni za marec 2027. DDV je vključen v ceno, zato kupec ne plača davka na promet nepremičnin. V neposredni bližini se nahajajo šola, vrtec, lekarna, kavarne, restavracije in trgovski centri, kar nepremičnino naredi odlično izbiro za družinsko življenje, turistični najem ali dolgoročno investicijo.
ID: 1240605