Stanovanje - POREČ - 390.000 EUR
| Lokacija | POREČ, Istrska |
| Cena € | 390.000 |
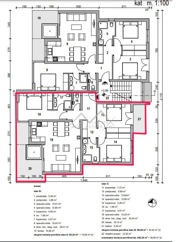
| Površina | 96 m2 |
| Število sob | 4 |
| Število kopalnic | 3 |
| Oddaljenost od morja | 7000 m |
To na novo zgrajeno stanovanje ponuja popolno kombinacijo luksuza in udobja, z velikostjo 96,56 kvadratnih metrov in se nahaja v pritličju sodobne stanovanjske stavbe s samo štirimi enotami. Njegov odprt koncept dnevne sobe, kuhinje in jedilnice ustvarja idealen prostor za druženje in sprostitev z vašimi najdražjimi. Stanovanje je v celoti moderno opremljeno in se ponaša s tremi prostornimi in elegantno oblikovanimi spalnicami. Dve spalnici si delita udobno kopalnico, medtem ko tretja spalnica zagotavlja dodatno zasebnost z lastno kopalnico. Poleg tega stanovanje vključuje gostinski WC, praktičen hodnik in prostoren vhodni prostor. Talno gretje zagotavlja toploto v hladnejših mesecih, medtem ko ventilatorski konvektorji omogočajo učinkovito ogrevanje in hlajenje skozi vse leto. Poseben čar te nepremičnine je prostorno sončišče in bazen, idealna za uživanje v sončnih dneh in sprostitev z družino in prijatelji. Ta zunanja površina naredi vsak trenutek nepozaben. Stanovanju pripada tudi praktična kletna shramba velikosti približno 7 kvadratnih metrov, idealna za shranjevanje opreme za plažo ali sezonskih potrebščin. Stanovanje se nahaja na odlični lokaciji, le 7 km od Poreča in 6 km od najbližje plaže ter kristalno čistega morja. Vsa potrebna infrastruktura, kot so trgovine, šole, vrtci, restavracije in kavarne, je na dosegu roke, zaradi česar je ta nepremičnina idealna tako za družinsko življenje kot za turistični najem. Ne zamudite priložnosti za lastništvo tega majhnega koščka raja v Poreču. Rezervirajte ogled že danes in naredite prvi korak k lastništvu svoje luksuzne sredozemske nepremičnine. Nepremičnina je vključena v sistem DDV, cena vključuje DDV.
ID: 1125615