Stanovanje - POREČ - 379.000 EUR
| Lokacija | POREČ, Istrska |
| Cena € | 379.000 |
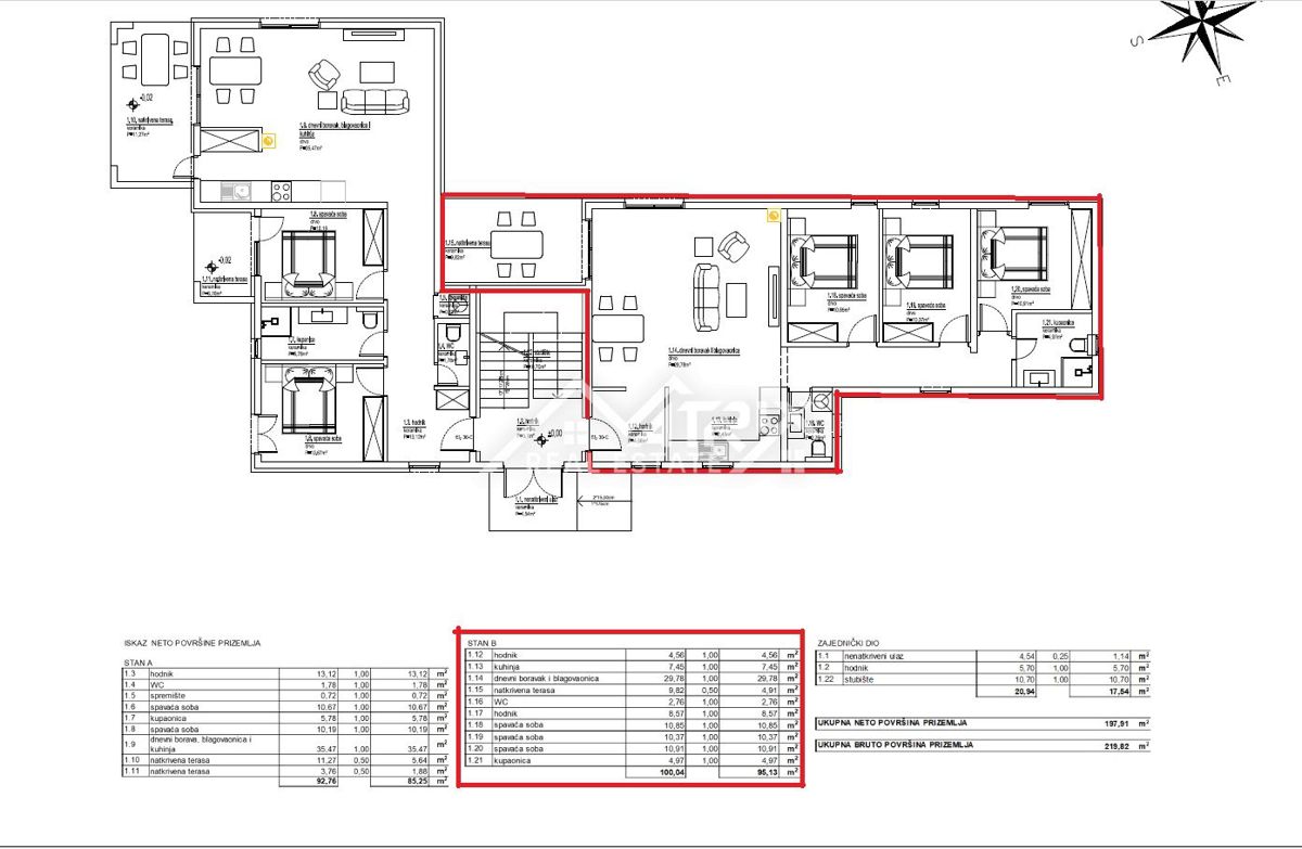
| Površina | 95 m2 |
| Število sob | 4 |
| Površina parcele | 108 m2 |
| Število kopalnic | 2 |
| Bližina prevoza | DA |
| Oddaljenost od morja | 800 m |
V neposredni bližini morja in mesta se prodaja stanovanje v stanovanjski zgradbi s petimi stanovanji. Stanovanje se nahaja v pritličju, njegova površina je 95 m2, obsega prostorno dnevno sobo, kuhinjo in jedilnico v open space konceptu, dve udobni spalnici, eno kopalnico, en WC in teraso. Stanovanje bo ogrevano s pomočjo učinkovitega talnega ogrevanja na elektriko, za hlajenje pa bodo v vsakem prostoru nameščene klimatske naprave. V dnevni sobi bo nameščena priprava za kamin, kar bo omogočalo tretjo možnost ogrevanja in ustvarilo prijetno vzdušje. Okna bodo izdelana iz visokokakovostnega PVC-ja, talne obloge pa bodo kupci lahko izbrali po lastnem okusu. Stanovanju pripada tudi velik vrt v velikosti približno 108 m², popoln za uživanje na prostem. Zaključek gradnje te prestižne stavbe je predviden za jesen 2025. Vsa pomembna infrastruktura, kot so trgovine, restavracije, šole in javni prevoz, so oddaljeni le nekaj minut hoje ali vožnje z avtomobilom, kar to nepremičnino naredi izjemno praktično in zaželeno. Ne zamudite priložnosti, da postanete lastnik tega čudovitega stanovanja na privlačni lokaciji. Kontaktirajte nas še danes za več informacij in rezervirajte termin za ogled!
ID: 1253010