Stanovanje - POREČ - 350.000 EUR
| Lokacija | POREČ, Istrska |
| Cena € | 350.000 |
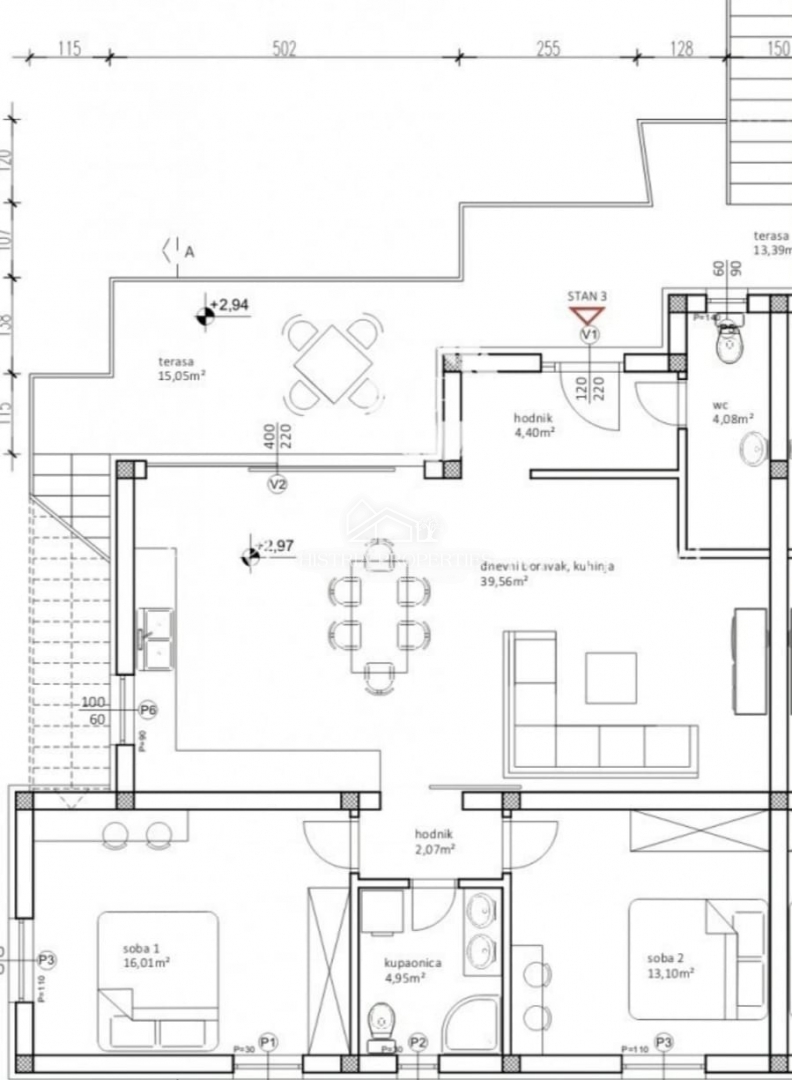
| Površina | 88 m2 |
| Število sob | 3 |
| Število kopalnic | 2 |
| Bližina prevoza | DA |
| Oddaljenost od morja | 5000 m |
Prostorna strešna terasa s pogledom na morje in novo moderno stanovanje v stanovanjskem naselju v bližini Poreča bodo prepoznali pravi kupci, ki iščejo luksuz, mir in kraj za popoln oddih. Stanovanje se nahaja v dizajnerski in kakovostni novogradnji s 4 stanovanjskimi enotami. Stanovanje se nahaja v odprti dnevni sobi s kuhinjo in jedilnico, ki ju steklena stena povezuje s teraso v prvem nadstropju. S terase nas zasebno stopnišče vodi na impresivno strešno teraso, primerno za postavitev različnih objektov, kot so jacuzzi (vključen v ceno), terasa za sončenje in letna kuhinja, ki zagotavljajo maksimalno udobje za idealen oddih. K temu modernemu stanovanju spadajo tudi 2 spalnici, kopalnica in dodatno stranišče. Talno ogrevanje po celotnem stanovanju preko nadzemne toplotne črpalke, klimatska naprava in 2 parkirni mesti so vključeni v ceno tega stanovanja. Lastnik načrtuje, da bo stanovanje opremil z italijanskim pohištvom, kar pa se lahko po dogovoru odpove, če bi kupec želel stanovanje urediti po svojem okusu, kar je vsekakor možnost, ki jo je vredno razmisliti. DDV je vključen v ceno stanovanja in kupec ne plača davka na nepremičnine. Le nekaj minut vožnje do mesta Poreč in bližina urejenih plaž bosta navdušili vse, ki cenijo udobje, mir in vse ugodnosti, ki jih to stanovanje ponuja za vaše prijetno bivanje. Ogled nepremičnine je možen le s podpisano pogodbo o posredovanju, ki je podlaga za nadaljnja dejanja v zvezi s kupoprodajo in plačilom provizije v skladu z Zakonom o posredovanju v prometu z nepremičninami. Pri kupoprodaji znaša posredniško nadomestilo 3 % brez DDV in se zaračuna kupcu in prodajalcu ob sklenitvi predpogodbe/kupoprodajne pogodbe.
ID: 1239153