Stanovanje - POREČ - 326.300 EUR
| Lokacija | POREČ, Istrska |
| Cena € | 326.300 |
| Površina | 82 m2 |
| Število sob | 3 |
| Število kopalnic | 1 |
| Oddaljenost od morja | 6000 m |
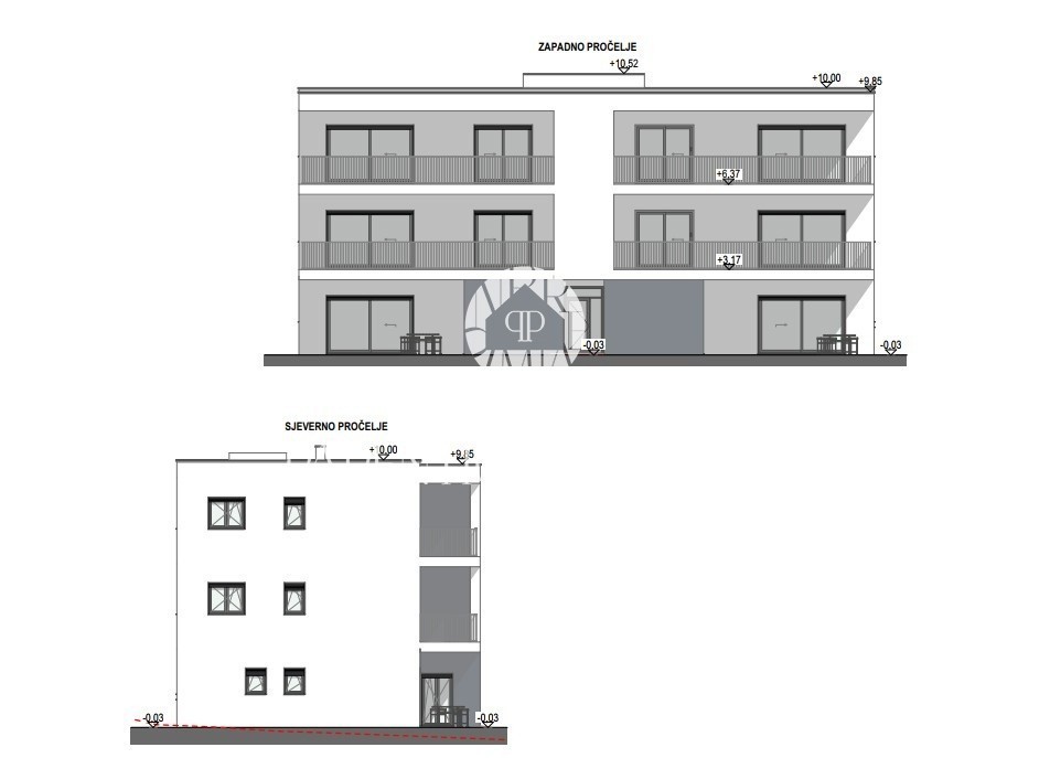
Istra, okolica Poreča Na prodaj je stanovanje z neto bivalno površino 70,3 m² in pokrito teraso površine 23,8 m² neto, ki se nahaja v 2. nadstropju kakovostne stanovanjske stavbe z dvigalom, trenutno v gradnji. Moderna stavba s skupno šestimi stanovanjskimi enotami se nahaja na mirni lokaciji blizu mesta Poreč in morja. Stanovanje obsega vhodni hodnik, shrambo, WC, dve prostorni spalnici, kopalnico ter dnevni prostor s kuhinjo in jedilnico v open-space konceptu, z izhodom na veliko pokrito teraso s čudovitim panoramskim razgledom na okolico in morje. Na terasi bodo pripravljeni priključki za elektriko, vodo in odtok – idealno za letno kuhinjo ali pralnico po želji kupca. Ogrevanje in hlajenje sta zagotovljena s tremi klimatskimi napravami, povezanimi na eno zunanjo enoto, celotno stanovanje pa ima električno talno ogrevanje. Okna bodo PVC s troslojno zasteklitvijo in roletami, na oknih bodo vgrajeni komarniki. Toplotna izolacija bo izvedena s 10 cm stiropora v kombinaciji s stekleno volno, kar zagotavlja visoko energetsko učinkovitost in prijetno temperaturo skozi vse leto. V tej fazi gradnje ima kupec možnost izbire keramike in talnih oblog do cene 50 €/m². Stanovanju pripadata dve parkirni mesti pred stavbo, možen pa je tudi nakup dodatne shrambe v pritličju. Kupec je oproščen plačila davka na promet z nepremičninami. Predviden zaključek gradnje je jeseni 2026. Ne zamudite te priložnosti – idealno stanovanje za udobno bivanje ali kot pametna naložba!Ogled nepremičnine je možen s podpisano pogodbo o posredovanju, ki je podlaga za nadaljnje ukrepanje v zvezi s prodajo in provizijo v skladu z Zakonom o posredovanju v prometu z nepremičninami. Pri prodaji znaša agencijska provizija 3% + DDV in se obračuna ob sklenitvi predpogodbe/prodajne pogodbe.
ID: 1228771