Stanovanje - POREČ - 324.690 EUR
| Lokacija | POREČ, Istrska |
| Cena € | 324.690 |
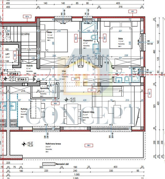
| Površina | 82 m2 |
| Število sob | 3 |
| Število kopalnic | 2 |
| Oddaljenost od morja | 7000 m |
Na prodajo je stan na drugem nadstropju moderne zgradbe na odlični lokaciji, v naselju z vsemi potrebnimi vsebinami, oddaljenem le 7 km od Poreča in morja. Stan bo imel notranjo površino 70,3 m², s terase dodatne površine 23,8 m² pa se bo razprostiral čudovit pogled na morje. Stan bo nudil udoben prostor, ki obsega dve prostorni spalnici, jedilnico povezano s kuhinjo, dnevno sobo z izhodom na pokrito teraso, dve kopalnici in shrambo. K stanovanju pripada tudi shramba v pritličju zgradbe. Opremljen bo z aluminijasto stavbno pohištvo in električnim talnim ogrevanjem, kar bo zagotavljalo prijetno bivanje skozi vse leto. Kakovostni materiali in sodoben dizajn delajo to nepremičnino praktičen dom za prijetno življenje. Stanu pripadata tudi dve parkirni mesti. V neposredni bližini so vse potrebne vsebine — šola, vrtec, trgovina itd. Za več informacij in dogovor o ogledu nas prosimo kontaktirajte.
ID: 1233390