Stanovanje - POREČ - 280.000 EUR
| Lokacija | POREČ, Istrska |
| Cena € | 280.000 |
| Površina | 85 m2 |
| Število sob | 4 |
| Število kopalnic | 2 |
| Bližina prevoza | DA |
| Oddaljenost od morja | 6000 m |
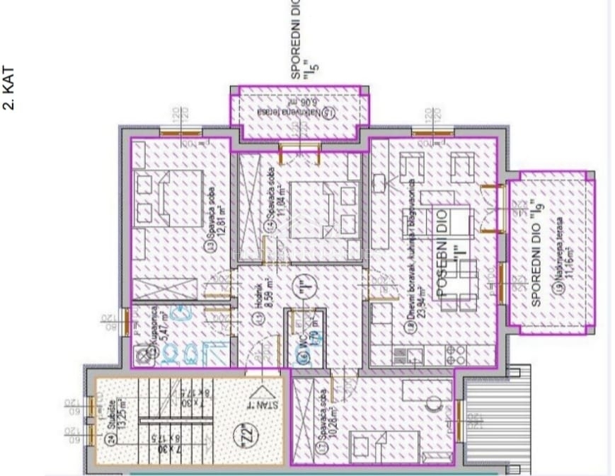
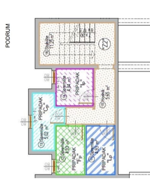
To novo stanovanje se nahaja na lepi in mirni lokaciji v mestu z vsemi ugodnostmi za družinsko življenje. V stanovanjski stavbi je naprodaj še nekaj stanovanj, to pa se nahaja v 2. nadstropju te novogradnje. Stanovanje je sestavljeno iz predsobe, ki povezuje vse prostore v stanovanju. Odprt dnevni prostor s kuhinjo in jedilnico nas vodi na teraso s panoramskim razgledom na morje. Ljubitelji morja bodo lahko uživali na sončni terasi vse leto. Velika kopalnica, 3 spalnice, stranišče in shramba v kleti zagotavljajo vse, kar mora imeti funkcionalno stanovanje. V lastništvo stanovanja sta vpisani 2 parkirni mesti. Kupec z nakupom tega stanovanja ne plača davka na nepremičnine, možen pa je tudi nakup na kredit. Odlična priložnost na trgu, takoj vseljivo in udobno stanovanje za družinsko življenje ali mirno turistično bivanje v bližini čudovitega mesta Poreč. Ogled nepremičnine je možen le s podpisano pogodbo o posredovanju, ki je podlaga za nadaljnja dejanja v zvezi s kupoprodajo in plačilom provizije v skladu z Zakonom o posredovanju v prometu z nepremičninami. Pri kupoprodaji znaša posredniško nadomestilo 3 % brez DDV in se zaračuna kupcu in prodajalcu ob sklenitvi predpogodbe/kupoprodajne pogodbe.
ID: 1239171