Stanovanje - POREČ - 278.000 EUR
| Lokacija | POREČ, Istrska |
| Cena € | 278.000 |
| Površina | 69 m2 |
| Število sob | 3 |
| Število kopalnic | 1 |
| Oddaljenost od morja | 0 m |
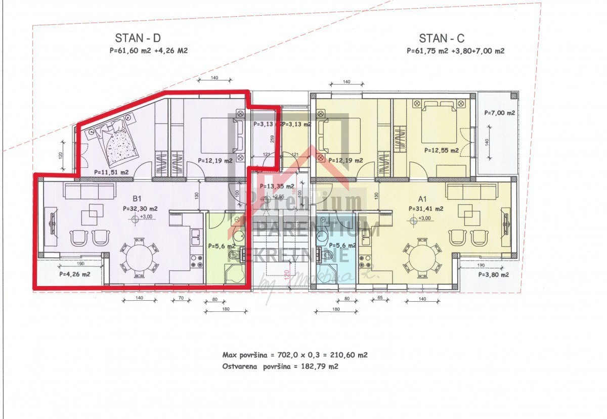
Poreč, Istra, Poreč Prodamo stanovanje v novogradnji. Stanovanje se nahaja v prvem nadstropju stavbe, od skupno 4 stanovanj. Zunanje stopnišče vodi v prvo nadstropje. Stanovanje D, 69m2, se nahaja v prvem nadstropju stanovanjske stavbe. Stanovanje obsega hodnik, dve spalnici, kopalnico ter kuhinjo z jedilnico in dnevno sobo. Dnevna soba vodi na teraso 4,26 m2. Stanovanju pripada shramba 3 m2. Stanovanje bo ogrevano preko toplotne črpalke v dveh spalnicah in dnevni sobi. Po tleh, po celotnem stanovanju, bo položena kvalitetna italijanska keramika. V tej fazi gradnje lahko kupci še vedno izbirajo keramiko po lastni želji. Mizarstvo bo PVC z električnimi žaluzijami. Stanovanju pripada eno parkirno mesto. Predviden zaključek gradnje je marec 2026. Kupec NE plača davka na promet nepremičnin, ker je prodajalec pravna oseba. V primeru, da stanovanje kupi pravna oseba, je kupec oproščen plačila DDV v višini 25 %. Stan D
ID: 1218998