Stanovanje - POREČ - 270.000 EUR
| Lokacija | POREČ, Istrska |
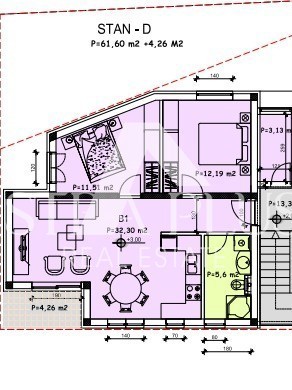
| Cena € | 270.000 |
| Površina | 66 m2 |
| Število sob | 3 |
| Število kopalnic | 1 |
| Oddaljenost od morja | 0 m |
S361 Stanovanje v prvem nadstropju stanovanjske stavbe (skupaj 4 stanovanja), 2 km od centra Poreča in 1,5 km od morja. Površina 66 m² in obsega predsobo, kuhinjo z jedilnico in dnevno sobo z izhodom na teraso, kopalnico in dve spalnici. Stanovanju pripada tudi shramba in eno parkirno mesto. Stanovanje ima klimatsko napravo v vsaki sobi in električno talno ogrevanje. Stanovanje se nahaja v bližini vseh življenjskih ugodnosti, pa tudi plaže in obale. Predviden datum vselitve je 30.06.2026.
ID: 1261208