Stanovanje - POREČ - 244.000 EUR
| Lokacija | POREČ, Istrska |
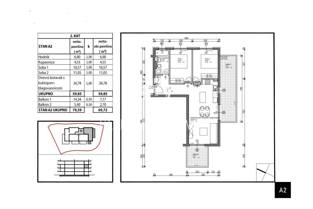
| Cena € | 244.000 |
| Površina | 69 m2 |
| Število sob | 3 |
| Število kopalnic | 1 |
| Oddaljenost od morja | 1000 m |
Istra, okolica Poreča Na prodaj je sodobno stanovanje v 2. nadstropju nove stanovanjske stavbe z dvigalom, le 1 km od morja, v kraju, ki nudi vse potrebne vsebine za prijetno in kakovostno bivanje. Stanovanje ima skupno neto površino 69,72 m² in obsega vhodni hodnik, dve spalnici, kopalnico, kuhinjo z jedilnico ter prostorno dnevno sobo z izhodom na dve terasi, ki nudita dodatno udobje. Ogrevanje in hlajenje sta urejena s klimatskimi napravami, v dnevni sobi, jedilnici, kuhinji in kopalnici pa je vgrajeno električno talno ogrevanje. Stanovanju pripadata shramba velikosti 2,42 m² in eno parkirno mesto. Nepremičnina je primerna za reševanje stanovanjskega vprašanja ali kot dolgoročna investicija.Ogled nepremičnine je možen s podpisano pogodbo o posredovanju, ki je podlaga za nadaljnje ukrepanje v zvezi s prodajo in provizijo v skladu z Zakonom o posredovanju v prometu z nepremičninami. Pri prodaji znaša agencijska provizija 3% + DDV in se obračuna ob sklenitvi predpogodbe/prodajne pogodbe.
ID: 1244906