Stanovanje - POREČ - 238.600 EUR
| Lokacija | POREČ, Istrska |
| Cena € | 238.600 |
| Površina | 78 m2 |
| Število sob | 2 |
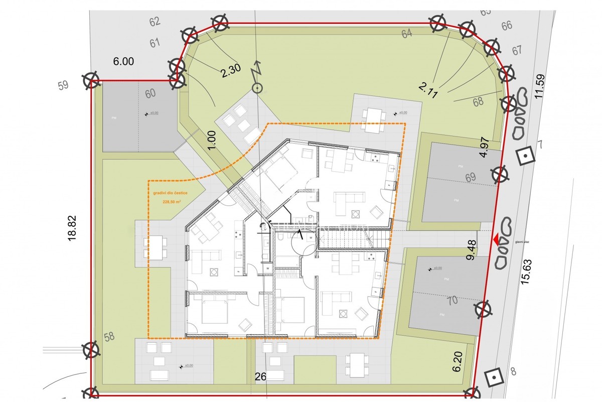
| Površina parcele | 151 m2 |
| Število kopalnic | 1 |
| Oddaljenost od morja | 4000 m |
Istra, Poreč Le nekaj minut vožnje od središča Poreča in prvih plaž se nahaja ta sodobna novogradnja s skupno petimi stanovanjskimi enotami. Naprodaj je pritlično stanovanje s površino 78,58 m² in prostoren vrt 151,15 m². Stanovanje obsega kuhinjo z jedilnico in dnevno sobo z izhodom na vrt, eno spalnico in kopalnico. Opremljeno bo z večdelno klimatsko napravo (multi-split), kopalnica pa bo imela električno talno gretje za dodatno udobje v zimskih mesecih. Stanovanju pripada eno parkirno mesto pred stavbo. Odlična priložnost za rešitev stanovanjskega vprašanja ali kot naložba za turistični najem.Ogled nepremičnine je možen s podpisano pogodbo o posredovanju, ki je podlaga za nadaljnje ukrepanje v zvezi s prodajo in provizijo v skladu z Zakonom o posredovanju v prometu z nepremičninami. Pri prodaji znaša agencijska provizija 3% + DDV in se obračuna ob sklenitvi predpogodbe/prodajne pogodbe.
ID: 1225639