Parcela - POREČ - 250.000 EUR
| Lokacija | POREČ, Istrska |
| Cena € | 250.000 |
| Površina | 2035 m2 |
| Površina parcele | 2035 m2 |
| Oddaljenost od morja | 0 m |
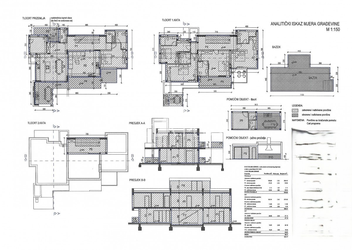
Istra, Poreč 9km - Gradbeno zemljišče z veljavnim gradbenim dovoljenjem in infrastrukturo Naprodaj je atraktivno gradbeno zemljišče v kraju v bližini Poreča, z veljavnim gradbenim dovoljenjem, ki vam omogoča takojšen začetek gradnje brez čakanja. Ta nepremičnina predstavlja izjemno prednost, saj pridobitev dovoljenja običajno traja dolgo - tukaj je ta postopek že v celoti zaključen. Zemljišče ima priključke za elektriko in vodo, kar še dodatno olajša in pospeši začetek gradnje. Zemljišče ponuja pogled na morje! Podrobnosti projekta: • Družinska stanovanjska stavba (P+2) z 1 stanovanjsko enoto • Pomožni objekt in bazen • Površina gradbene parcele: 1.035 m² • Bruto površina stanovanjskega objekta: 300,36 m² • Bruto površina pomožnega objekta: 15,91 m² • Skupna bruto površina objekta: 316,27 m² • Pritličje: vhodna dvorana, kurilnica, stranišče, kuhinja in jedilnica ter dnevna soba z izhodi na teraso. Predvidena je tudi letna kuhinja. V pritličju bi bila prav tako ena spalnica z lastno kopalnico. • 1. nadstropje: 4 spalnice, vsaka s svojo kopalnico, in terase • Največja pozidanost: 25 % površine gradbene parcele Dostop in parkiranje: • Neposreden dostop z vozili z javne ceste • Varovano parkirišče za 4 vozila znotraj gradbene parcele Lokacija: Zemljišče se nahaja na dobro vzdrževanem in mirnem območju s popolno infrastrukturo za vsakdanje življenje - v bližini so šola, vrtec, pošta, lekarna in drugi objekti. Mesto Poreč in morje sta oddaljena le 9 km.
ID: 1252859