Parcela - POREČ - 130.000 EUR
| Lokacija | POREČ, Istrska | 
| Cena € | 130.000 | 
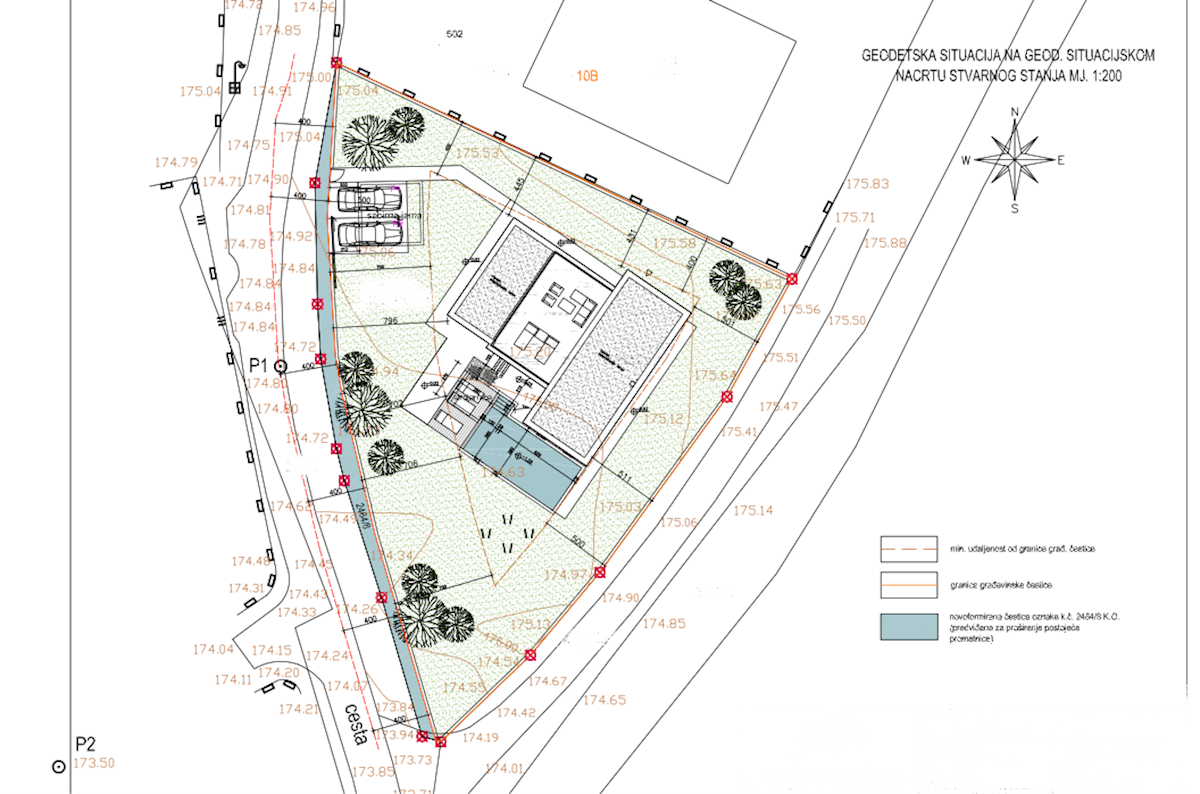
| Površina | 841 m2 | 
| Oddaljenost od morja | 10000 m | 
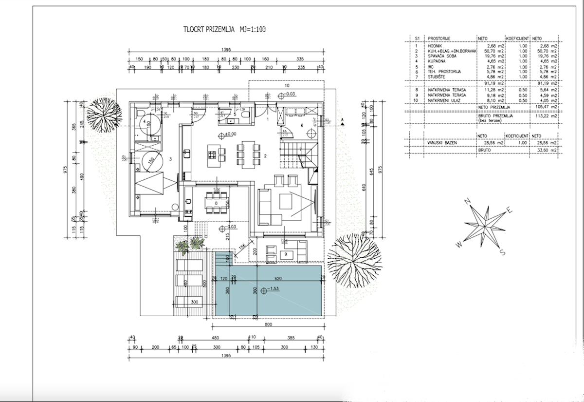
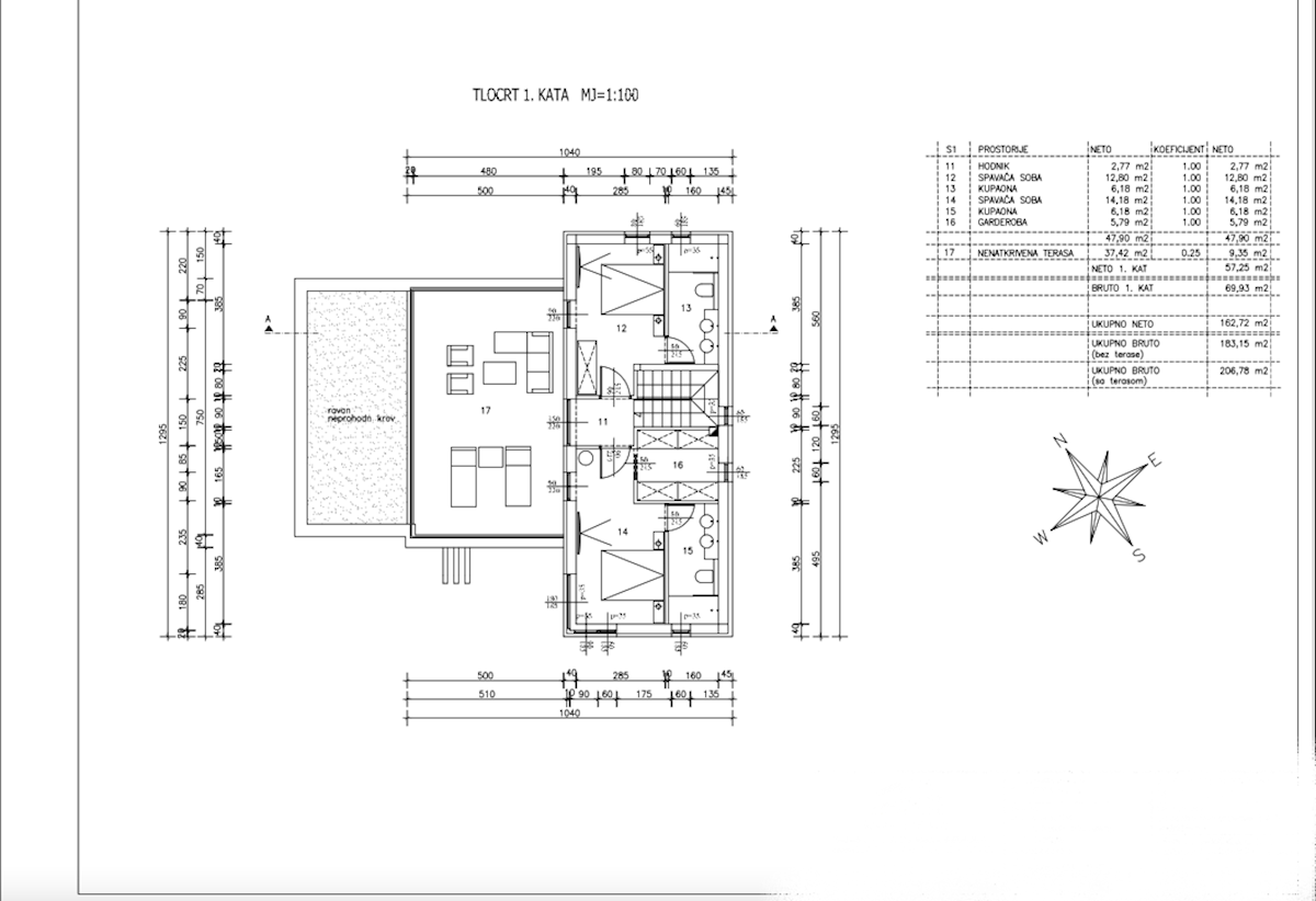
Na prodaj je privlačna gradbena parcela velikosti 841 m², ki se nahaja v mirni vasi le 8 km od Poreča in morja ter približno 2 km od izvoza z avtoceste. Parcela ima veljavno gradbeno dovoljenje in plačan komunalni prispevek za gradnjo moderne družinske hiše z bazenom. Projekt predvideva montažno hišo z 162 m² bivalne površine in bazenom velikim 30 m², razporejeno v pritličje in nadstropje. Hiša obsega 3 spalnice, 3 kopalnice, in pritličje, popolnoma prilagojeno gibalno oviranim osebam, vključno z dostopom do bazena. Projekt se ponaša z energetsko učinkovitostjo, sodobnim dizajnom in trajnostno gradnjo. V ceno je vključen tudi strošek prve faze gradnje (okoli 60.000 €). Mirna lokacija v bližini morja in vseh vsebin – idealno za družinski dom ali investicijo v Istri. Priključek za vodo je ob parceli (prispevek ni vključen v ceno). Gradbeno dovoljenje je pravnomočno – gradnja se lahko začne takoj!
ID: 1227383
 
         
                             
                             
                            