Hiša - POREČ - 775.000 EUR
| Lokacija | POREČ, Istrska |
| Cena € | 775.000 |
| Površina | 170 m2 |
| Število sob | 4 |
| Površina parcele | 968 m2 |
| Število kopalnic | 3 |
| Oddaljenost od morja | 17000 m |
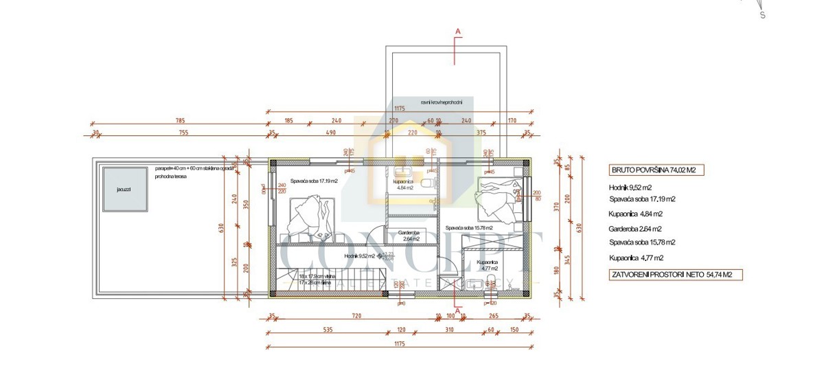
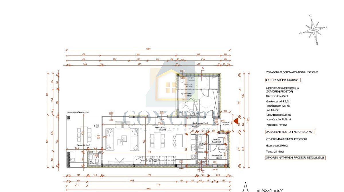
Na robu gradbene cone, v mirnem okolju, se gradi ta atraktivna vila, ki bo ponudila spoj sodobne arhitekture, kakovostnih materialov in prijetnega ambienta. Na zemljišču velikosti 968 m² je načrtovana gradnja vile bruto površine 230 m², oziroma neto površine 170 m². V pritličju so predvideni shrambe, pralnica, stranišče, ena spalnica z lastno kopalnico, prostorna kuhinja in jedilnica ter dnevna soba. Iz dnevne sobe je izhod na pokrito teraso z poletno kuhinjo in dodatnim straniščem. V nadstropju se nahaja ena spalnica z lastno kopalnico ter glavna (master) spalnica s kopalnico, garderobo in prostorno teraso, ki nudi pogled na naravno pokrajino. V dvorišču je načrtovan bazen velikosti 40 m², ob katerem bo urejeno posebno mesto za druženje in sprostitev ob ognju, t.i. "fire pit". Celotno posestvo bo ograjeno z zidom, znotraj dvorišča pa bo zagotovljen prostor za parkiranje treh do štirih avtomobilov. Vila se bo prodajala po načelu "ključ v roke" (brez pohištva). Pohištvo, prikazano na vizualizacijah, je možno ponuditi za doplačilo. Za več informacij in dogovor o ogledu nas prosimo kontaktirajte.
ID: 1227959