Hiša - POREČ - 598.000 EUR
| Lokacija | POREČ, Istrska |
| Cena € | 598.000 |
| Površina | 116 m2 |
| Število sob | 4 |
| Površina parcele | 150 m2 |
| Število kopalnic | 4 |
| Bližina prevoza | DA |
| Oddaljenost od morja | 0 m |
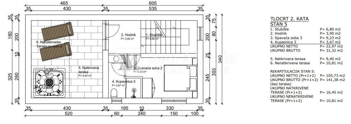
Poreč, Luksuzna hiša z bazenom in veliko teraso s pogledom na morje V pritličju hiše je prostoren dnevni prostor z odprto kuhinjo in jedilnico, ki je z velikimi steklenimi stenami povezana z dvoriščem, kjer je 25 m2 velik bazen. Tu je tudi shramba in WC za goste. V prvem nadstropju sta dve spalnici, vsaka s svojo kopalnico in ena s svojo pokrito teraso. V drugem nadstropju je tretja spalnica s kopalnico in prostorno delno pokrito teraso s čudovitim pogledom na morje. Ogrevanje in hlajenje je zagotovljeno s talnim gretjem v vseh prostorih in klimatskimi napravami Ekskluzivna nepremičnina na iskani lokaciji se prodaja v fazi na ključ, predviden zaključek del pa je pozno pomlad 2025. Nepremičnina je vključena v sistem DDV, zato kupcu ni treba plačati davka na promet nepremičnin. Zaradi svoje lokacije je to odlična naložba tako za turizem kot za udobno življenje na morju. Provizija agencije za kupca znaša 3 % + DDV (skupaj 3,75 %) in se plača ob podpisu predpogodbe. Če predpogodba ni sklenjena, se agencijska provizija plača takoj ob podpisu glavne kupoprodajne pogodbe. Ogled nepremičnine je mogoč šele po podpisu pogodbe o posredovanju. Agencija ne odgovarja za morebitne napake, opustitve ali netočnosti v besedilu in opisu oglasa.
ID: 1250814