Hiša - POREČ - 598.000 EUR
| Lokacija | POREČ, Istrska | 
| Cena € | 598.000 | 
| Površina | 125 m2 | 
| Število sob | 4 | 
| Površina parcele | 230 m2 | 
| Število kopalnic | 4 | 
| Bližina prevoza | DA | 
| Oddaljenost od morja | 900 m | 
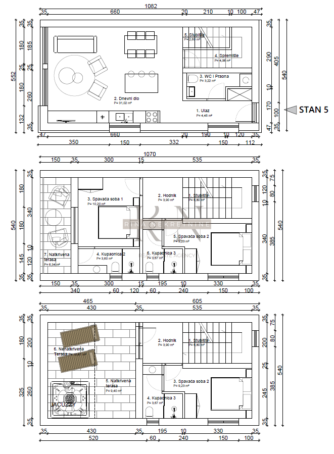
POREČ NOVOGRADNJA S POGLEDOM NA MORJE – PRIPRAVLJENA ZA VSELITEV S BAZENOM V mirnem, a urbanem delu Poreča, le 900 metrov od morja in plaže, se nahaja moderna novogradnja priznane istrske investitorke. Projekt vključuje tri stanovanja (75 m², 85 m² in 93,42 m²) ter dve hiši, od katerih ima ena svoj bazen. Lokacija je izjemno privlačna – do središča in starega mestnega jedra Poreča je le 2,5 kilometra, vodi pa lepo urejena sprehajalna pot ob morju. HIŠA 5 Površina hiše: 125 m² Velikost parcele: 230 m² Hiša se razteza čez tri etaže in ponuja popolno kombinacijo modernega dizajna, udobja in čudovitega pogleda na morje. Popolnoma je dokončana, pripravljena za vselitev in ima vso urejeno dokumentacijo. RAZPOREDITEV Pritličje: vhodni hodnik, odprt dnevni prostor s kuhinjo in jedilnico, stranišče in pralnica. Iz dnevnega prostora se dostopa na teraso z bazenom (24 m²). Prvo nadstropje: dve spalnici z lastnimi kopalnicami (en suite), ena ima izhod na teraso s pogledom na morje. Drugo nadstropje: glavna spalnica s kopalnico, prostorom za vgradne omare in veliko teraso z jacuzzijem ter čudovitim pogledom na morje. DODATNE LASTNOSTI Talno ogrevanje s toplotno črpalko Klimatske naprave za ogrevanje in hlajenje Visokokakovostni gradbeni materiali Premišljena in funkcionalna zasnova prostora CENA 598.000 € KONTAKT Višnja 091 2848 310 +385 91 2848 310 Kontaktirajte nas z zaupanjem – vaš novi dom v Poreču vas že čaka. Novogradnja s pogledom na morje v Poreču – idealna za bivanje ali naložbo v Istri.
ID: 1225375
 
         
                             
                             
                             
                             
                            