Hiša - POREČ - 505.000 EUR
| Lokacija | POREČ, Istrska |
| Cena € | 505.000 |
| Površina | 125 m2 |
| Število sob | 4 |
| Površina parcele | 160 m2 |
| Število kopalnic | 4 |
| Bližina prevoza | DA |
| Oddaljenost od morja | 800 m |
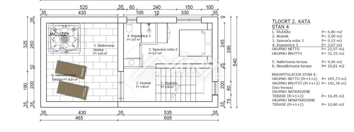
Poreč – Moderna vrstna hiša z jacuzzijem in pogledom na morje, le 800 m od morja! V novi in moderno zasnovani stavbi, na atraktivni lokaciji nedaleč od morja, je naprodaj prva vrstna hiša. Nepremičnina je oddaljena približno 800 metrov od obale in je odlična izbira za počitnice, življenje ob morju ali naložbo v turistični najem. Hiša je razporejena v treh nadstropjih: pritličje, prvo in drugo nadstropje. V pritličju se nahajajo vhodna dvorana, kuhinja z jedilnico in dnevna soba v odprtem konceptu, ki ustvarja prijeten in funkcionalen prostor za vsakdanje življenje. Velike steklene stene povezujejo notranjost s pokrito teraso in vrtom velikosti približno 160 m2, kar zagotavlja veliko naravne svetlobe in neposreden dostop do zunanjega prostora. V tem nadstropju se nahaja tudi stranišče za goste in praktična shramba pod stopnicami. Notranje stopnice vodijo v prvo nadstropje, kjer sta dve spalnici, vsaka s svojo kopalnico, kar zagotavlja udobje in zasebnost. To nadstropje vodi tudi na pokrito teraso, ki ponuja prijeten prostor za bivanje na prostem. V drugem nadstropju se nahaja dodatna spalnica in kopalnica, pokrita terasa z jacuzzijem pa je pravi mali zasebni kotiček za sprostitev. S te terase se ponuja odprt pogled na morje in okoliško pokrajino, kar še dodatno poudarja privlačnost te nepremičnine. Po vsej hiši je nameščeno električno talno ogrevanje, za ogrevanje in hlajenje pa so predvidene klimatske naprave, ki zagotavljajo udobno temperaturo skozi vse leto. Nepremičnina je v celoti dokončana, pripravljena za opremljanje in čimprejšnjo vselitev. Nepremičnina se prodaja v sistemu DDV, kar za novega lastnika predstavlja 3-odstotni prihranek pri davku na nepremičnine. Zaradi bližine morja, sodobnega koncepta in funkcionalne razporeditve prostorov ta hiša predstavlja odlično priložnost za naložbo v turistični najem, pa tudi za udobno življenje na eni najbolj zaželenih lokacij na zahodni obali Istre.
ID: 1270672