Hiša - POLJE Vprašaj za ceno
| Lokacija | POLJE, KRK, Primorsko-goranska |
| Cena € | Cena na upit |
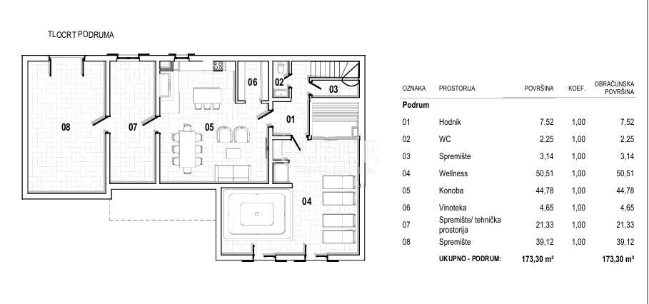
| Površina | 468 m2 |
| Število sob | 8 |
| Površina parcele | 637 m2 |
| Število kopalnic | 7 |
| Oddaljenost od morja | 0 m |
BREZČASNA VIZIJA RAZKOŠJA V SRCU OTOKA KRKA Kaiser Immobilien v svojo ponudbo prinaša ekskluziven projekt luksuzne vile, ki ni le zbirka nepremičnin za prodajo, temveč oživljena strast do ohranjanja brezčasne lepote in tradicije otoka Krka. Te vile, ki se nahajajo v mirnem podeželju Polja, v osrčju Dobrinjske regije, predstavljajo novo sredozemsko oazo – zbirko šestih elegantnih stavb, zasnovanih za tiste, ki cenijo mir, pristnost in arhitekturo z dušo. Tukaj se čar dediščine in toskanska estetika brezhibno prepletata z najvišjim sodobnim udobjem in ustvarjata zatočišče, kjer tradicija povezuje kopno, morje in ljudi v prefinjenem načinu življenja. Obdana z dišečimi oljčnimi nasadi in sredozemskim rastlinjem, vsaka vila ponuja dih jemajoč panoramski razgled na Jadransko morje. Arhitekturni koncept slavi svetlobo in prostornost, kar poudarjajo velike steklene stene, ki brišejo mejo med notranjostjo in skrbno urejenimi vrtovi. Srce vsakega doma sestavljajo odprti, s soncem obsijani prostori, zasebnost pa zagotavljajo spalnice z lastnimi kopalnicami in balkoni, ustvarjeni za uživanje v morskem obzorju. Raznolikost ponudbe omogoča vsakemu kupcu, da najde dom po svojem okusu – od vil velikosti 150 in 170 m², preko prostornih stavb velikosti 191 m², do impresivne rezidence velikosti 468 m² z dodatnim nadstropjem in zasebno wellness oazo, ki je pravi biser tega projekta. Vsaka vila je opremljena z najnovejšo tehnologijo – talnim ogrevanjem, klimatsko napravo in vrhunskimi materiali, zasebni bazeni in urejeni vrtovi pa zagotavljajo popolno vzdušje mediteranskega razkošja. Nepremičnine, zgrajene po najvišjih standardih, zagotavljajo dolgo življenjsko dobo, energetsko učinkovitost in brezskrbnost. Prodaja na ključ omogoča enostaven prehod v vaš novi dom ali hiter začetek turističnega najema, dejstvo, da je DDV vključen v ceno, pa še dodatno poudarja varnost naložbe. To je več kot le nepremičnina – to je povabilo k življenju v sožitju z naravo, v okolju, kjer vsaka podrobnost pripoveduje zgodbo o kakovosti in nas vsak pogled spominja, zakaj je Krk otok z dušo. Kaiser Immobilien – vaš partner za vrhunske nepremičnine v Kvarnerju Provizija agencije za kupca znaša 3 % + DDV. Provizija krije vse storitve, povezane z nakupom, in se plača le v primeru nakupa nepremičnine, ob sklenitvi pravnega posla. Za dodatne informacije se obrnite na: Marijana Cuculić Telefon: +385981869950 E-pošta: marijana.cuculic@kaiser-immobilien.hr Nelica Arsenijević Telefon: +385919254809 E-pošta: nelica@kaiser-immobilien.hr
ID: 1276624