Parcela - POLJANE - 285.000 EUR
| Lokacija | POLJANE, OPATIJA, Primorsko-goranska |
| Cena € | 285.000 |
| Površina | 1001 m2 |
| Oddaljenost od morja | 7000 m |
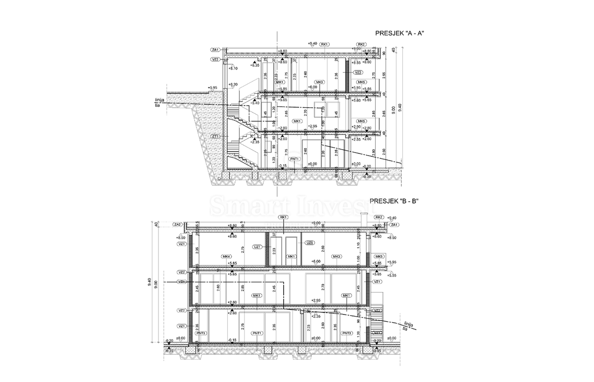
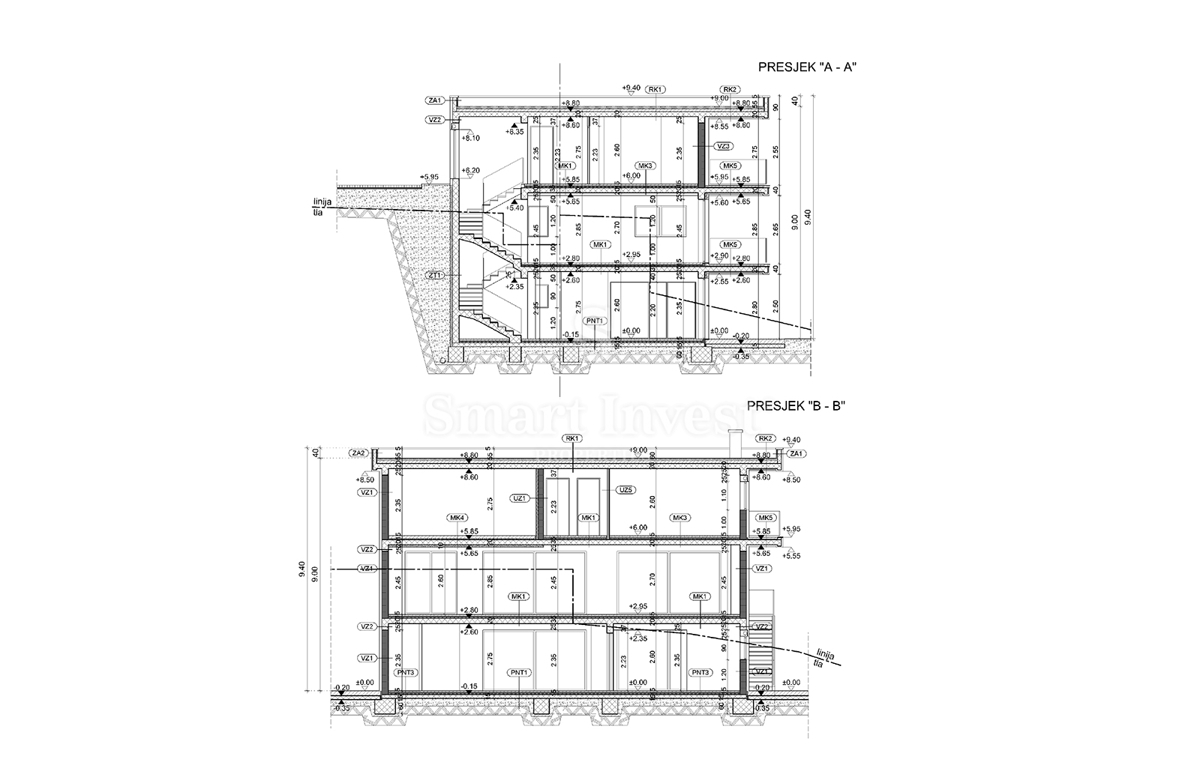
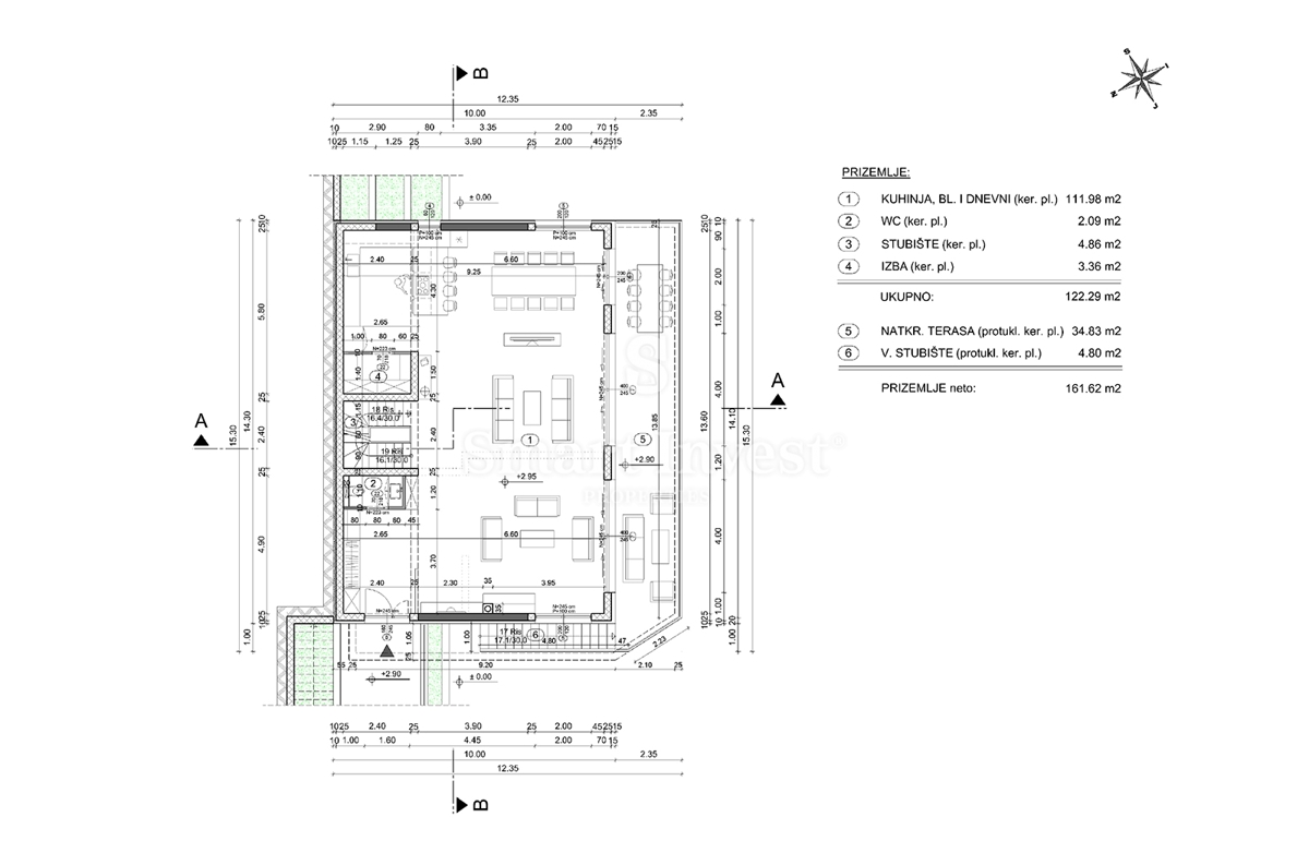
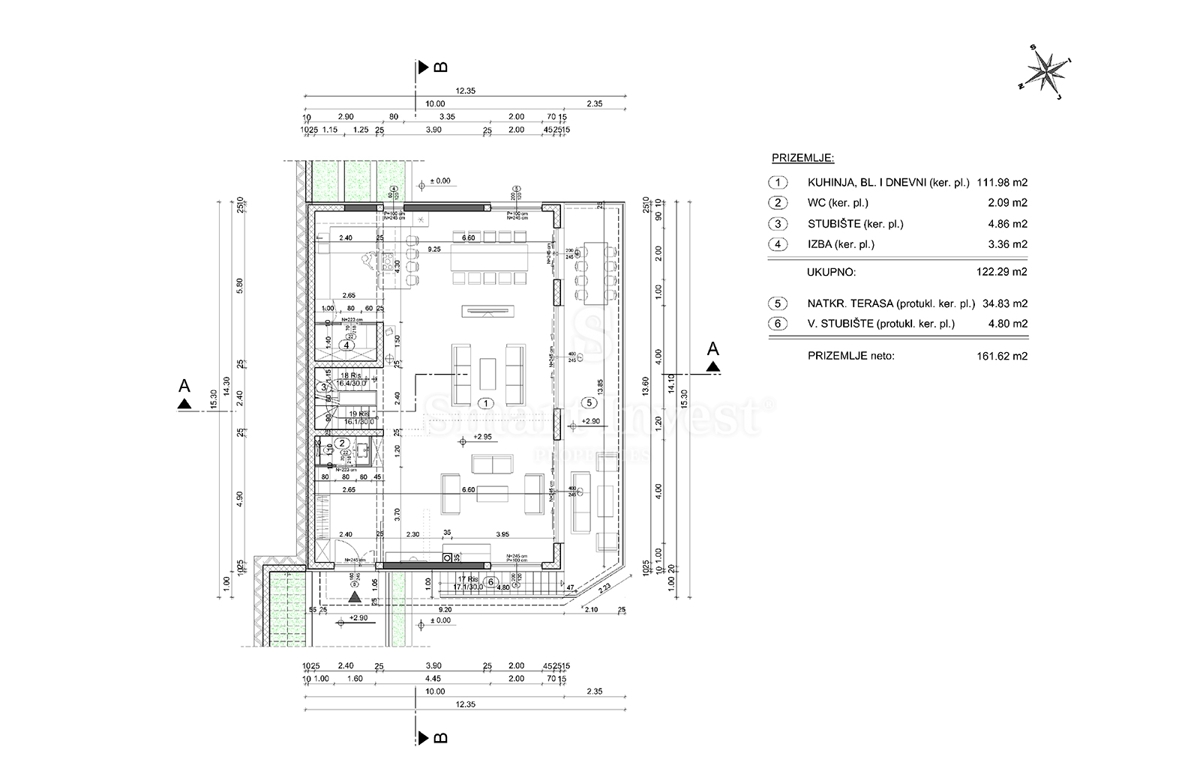
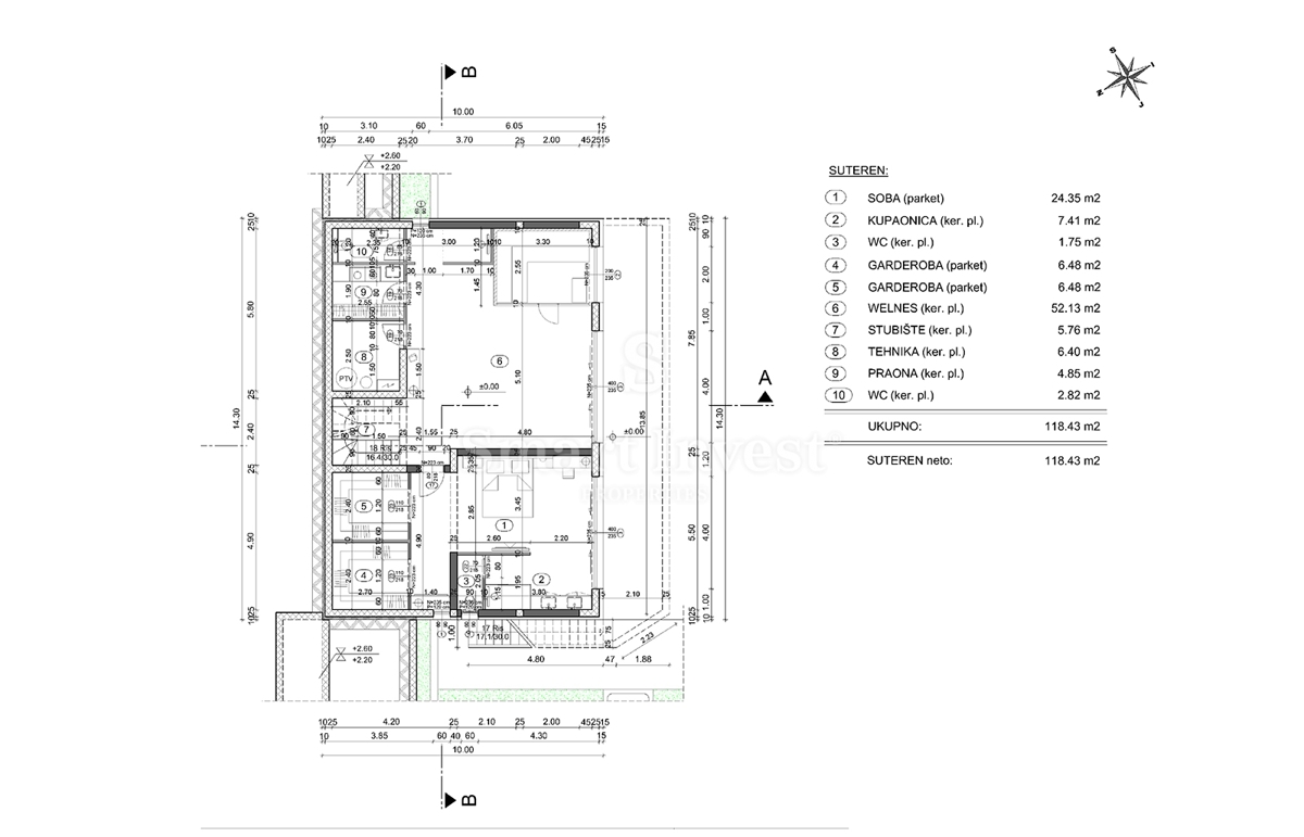
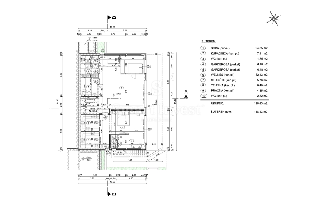
IČIĆI - POLJANE ZEMLJIŠČE Z GRADBENIM DOVOLJENJEM ZA VILLO Z BAZENOM IN POGLEDOM NA MORJE Na čudoviti mirni lokaciji, obdani z zelenjem in le 5 minut vožnje od morja in ACI marine, se prodaja privlačno zemljišče v velikosti 1001 m² z gradbenim dovoljenjem in plačanimi komunalnimi storitvami za moderno vilo z bazenom in garažo. Gradbeno dovoljenje predvideva gradnjo vile z neto površino 446,16 m2. Projekt ponuja vrhunsko kombinacijo modernega dizajna, prostornosti in razkošja, s poudarkom na očarljivem pogledu na morje podnevi in ponoči. LOKACIJA, KI NAVDUŠUJE Le nekaj minut vožnje od plaž in ACI marine v Ičićih ter 10 minut vožnje od središča Opatije – to zemljišče predstavlja izjemno investicijsko priložnost v enem najbolj iskanih delov Opatijske riviere, s povezavo z avtocesto pa je enostavno doseči Istro, Zagreb in okoliške države. Opatija s svojo stoletno tradicijo elitnega turizma, elegantno arhitekturo, parki in wellness ponudbo ponuja vse, kar potrebujete za razkošno in sproščeno življenje – tako v miru narave kot v neposredni bližini mestnih ugodnosti. Za več informacij in ogled pokličite: +385/99/320-0008
ID: 1214941