Stanovanje - PLOVANIJA - 207.500 EUR
| Lokacija | PLOVANIJA, ZADAR, Zadarska |
| Cena € | 207.500 |
| Površina | 47 m2 |
| Število sob | 2 |
| Bližina prevoza | DA |
| Oddaljenost od morja | 0 m |
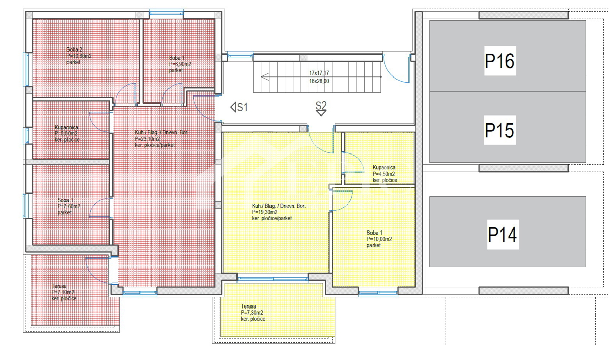
V ponudbi za vas imamo novogradnjo v eni izmed najbolj iskanih mestnih četrti, Plovaniji. Stanovanje oznake S2, v pritličju stavbe z osmimi stanovanjskimi enotami, je sestavljeno iz kuhinje z jedilnico in dnevno sobo, spalnice, kopalnice in pokrite terase. Stanovanju pripadata tudi dve parkirni mesti. Skupna uporabna površina stanovanja S2 s pomožnimi prostori in pripadajočimi deli znaša 118,60 m2, medtem ko je skupna uporabna površina stanovanja 47,95 m2. Pri gradnji so uporabljeni vrhunski materiali in oprema, med drugim protivlomna in protipožarna vrata, talno ogrevanje v vseh prostorih, klimatska naprava za ogrevanje in hlajenje ter troslojna PVC stavbna pohištva. Pričakovan energetski certifikat razreda A+. Predviden rok vselitve je poletje 2026. V istem objektu so na voljo tudi naslednja stanovanja: 1. nadstropje: S3 – trisobno – 257.500 €; S4 – enosobno – 185.000 €; S5 – trisobno – 278.000 €; 2. nadstropje: S6 – trisobno – 257.500 €; S7 – enosobno – 185.000 €; S8 – trisobno – 278.000 €; Plovanija je ena izmed najbolj iskanih in najhitreje rastočih stanovanjskih četrti v Zadru, idealna za mirno, prijetno in kakovostno življenje. Nahaja se v zahodnem delu mesta in ponuja popolno ravnovesje med urbano povezanostjo in družinskim mirom. V neposredni bližini so vsi ključni objekti za vsakdanje življenje – trgovine, šole, vrtci, športni objekti, lekarne in kavarne – medtem ko je do mestnega središča in mestnih plaž mogoče priti v nekaj minutah vožnje. Odlična prometna povezanost omogoča hiter izhod iz mesta in enostaven dostop do vseh delov Zadra. Kupec NE PLAČA davka na promet nepremičnin!! Za vse dodatne informacije ali ogled nepremičnine nas prosimo kontaktirajte.
ID: 1257712