Stanovanje - PJEŠČANA UVALA - 535.000 EUR
| Lokacija | PJEŠČANA UVALA, MEDULIN, Istrska |
| Cena € | 535.000 |
| Površina | 126 m2 |
| Število sob | 3 |
| Število kopalnic | 2 |
| Blizu plaže | DA |
| Oddaljenost od morja | 0 m |
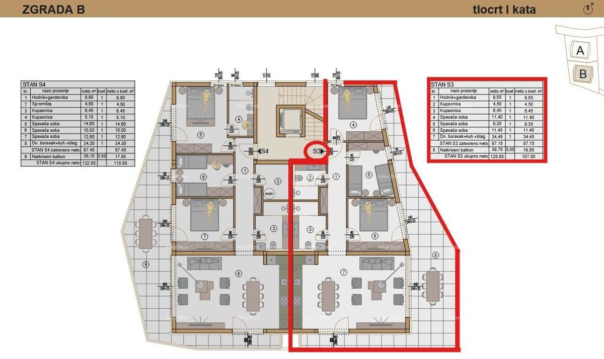
Nov luksuzni projekt, Pješčana Uvala! Projekt v gradnji obsega dve stavbi, vsaka ima tri etaže in v vsaki etaži po dve stanovanji. Stanovanje S3 se nahaja v prvem nadstropju stavbe B, s skupno površino 126,85 m² (neto površina 107 m²). Sestoji iz hodnika z garderobo, 3 spalnic, 2 kopalnic, dnevne sobe s kuhinjo in jedilnico ter prostornega pokritega balkona velikosti 39,70 m², ki je dostopen iz vseh sob in nudi čudovit pogled na morje. Stanovanju pripadata 2 parkirni mesti, ki ju je treba dodatno kupiti. Za več informacij nas kontaktirajte: Azra +385 91 611 5706 +385 98 420 885 azra@almadominvest.com
ID: 1245798