Stanovanje - PEROJ - 253.700 EUR
| Lokacija | PEROJ, VODNJAN, Istrska |
| Cena € | 253.700 |
| Površina | 71 m2 |
| Število sob | 2 |
| Število kopalnic | 1 |
| Oddaljenost od morja | 0 m |
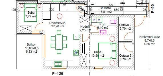
Na prodajo – moderna, nova stanovanja v Peroju s pogledom na morje. V očarljivem obmorskem kraju Peroj sta v gradnji dve moderni stanovanski stavbi s skupno 12 ekskluzivnimi stanovanji, zasnovanimi za zagotavljanje udobja, funkcionalnosti in sodobnega življenjskega sloga. Projekt obsega dve stavbi s tremi etažami in 6 stanovanji v vsaki stavbi. Stavbe, moderne arhitekture z trajnostnimi materiali in energetsko učinkovitimi rešitvami, ponujajo možnost vgradnje pametnih domačih sistemov in sončnih panelov. Z2-Stan S2 – pritličje To stanovanje se nahaja v pritličju stavbe in obsega: vhodni hodnik, dve spalnici, kopalnico, prostoren dnevni prostor s kuhinjo in jedilnico ter teraso. Stavba bo zgrajena po visokih standardih s skrbno izbranimi materiali, z integriranimi pametnimi inštalacijami ter obnovljivo energijo za zmanjšan vpliv na okolje in nižje obratovalne stroške, pametnimi vodnimi ventili, ki bodo v primeru puščanja avtomatsko zaprli glavne dovodne ventile. Za gradnjo nepremičnin bodo uporabljeni kakovostni negorljivi in protizvočni materiali, zagotovljen bo videofon z nadzorom in etažni protipožarni sistem, stavba bo opremljena z notranjim dvigalom, ki bo olajšalo dostop do stanovanjskih enot, medtem ko bo stavbno pohištvo PVC s elektro dvigalniki, povezanimi z wi-fi omrežjem, ter možnostjo upravljanja na daljavo. Osvetljava v kopalnici, hodnikih in kuhinji bo lahko izbrana vnaprej, medtem ko bo talno ogrevanje nameščeno v kopalnici, v stanovanju pa bodo tri enote klimatskih naprav. Možnost postavitve kuhinje po meri s Siemens belo tehniko in možnostjo montaže. Odlična lokacija, blizu morja, le nekaj minut vožnje od Pule. Stanovanju pripadata 2 parkirna mesta. Ta nepremičnina je popolna izbira za tiste, ki iščejo moderno domovanje blizu morja, idealno za celoletno bivanje in poletne počitnice. Za dodatne informacije, prosimo, kontaktirajte: Azra +385 91 611 5706 +385 98 420 885 azra@almadominvest.com
ID: 1242702