Poslovni prostor - PAG - 3.000.000 EUR
| Lokacija | PAG, Zadarska |
| Cena € | 3.000.000 |
| Površina | 1200 m2 |
| Oddaljenost od morja | 0 m |
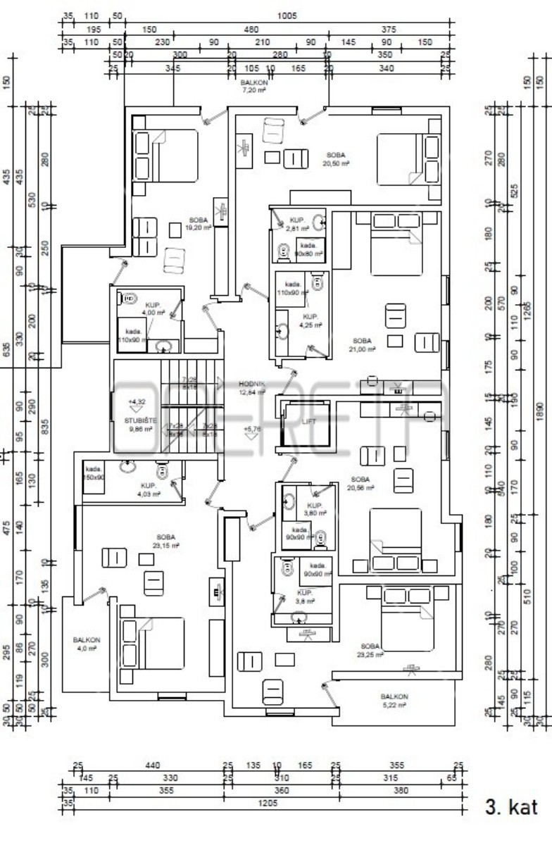
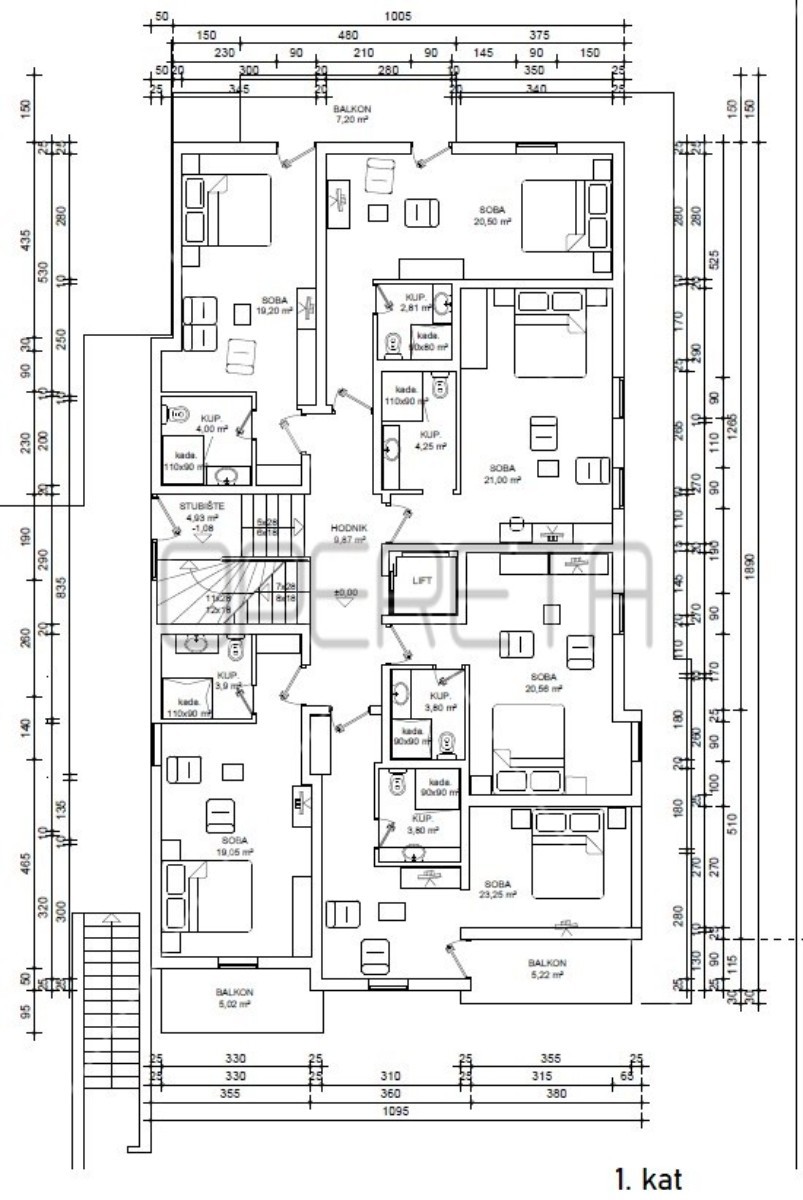
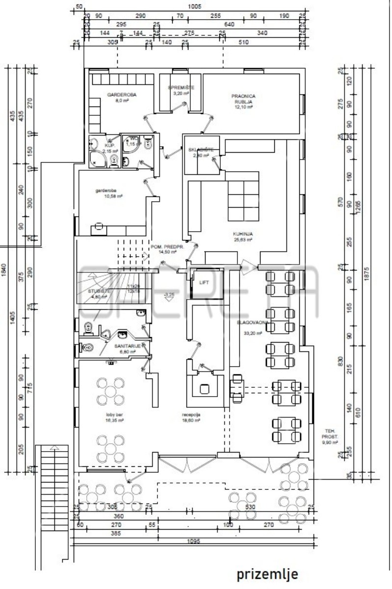
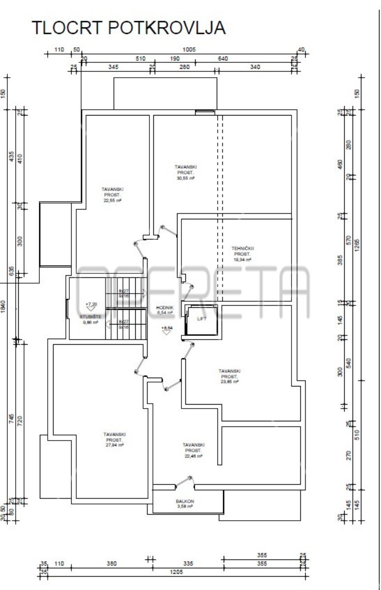
HOTEL S ŠTIRIMI ZVEZDICAMI V CENTRU MESTA PAGA Z APARTMAJSKO HIŠO V centru mesta Pag je na voljo hotel 4* skupaj z apartmajsko hišo ob hotelu s skupno površino 1.200 m2. Hotel obsega pritličje, tri nadstropja in mansardo. Pritličje obsega recepcijo, kuhinjo, restavracijo, kavarno, pralnico, prostor za zaposlene in zastekljeno teraso. V 3 etažah je 18 sob + 1 soba v mansardi. V mansardi je še prostor za masažo, tehnični prostor in shramba. Celoten hotel je odlično urejen. Apartmajska hiša, ki se naslanja neposredno na hotel, je sestavljena iz pritličja, prvega nadstropja in mansarde ter ponuja namestitev v 5 studio apartmajih in 1 štiriposteljnem apartmaju. Štiriposteljni apartma obsega 2 spalnici, dnevno sobo, kuhinjo, kopalnico, hodnik. ODLIČNA PRILOŽNOST ZA INVESTICIJO V CENTRU MESTA, KI JE PRILJUBLJENA DESTINACIJA ŠTEVILNIH DOMAČIH IN TUJIH TURISTOV.
ID: 1279975