Stanovanje - OREBIĆ - 259.999 EUR
| Lokacija | OREBIĆ, Dubrovniško-neretvanska |
| Cena € | 259.999 |
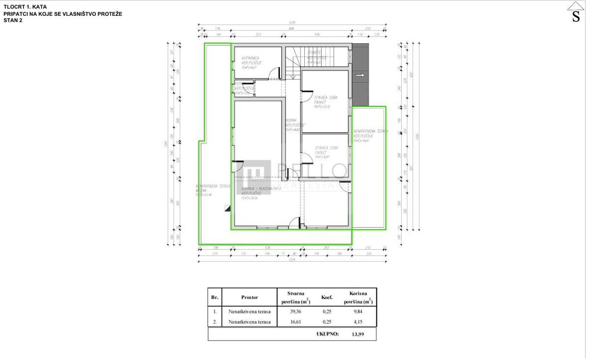
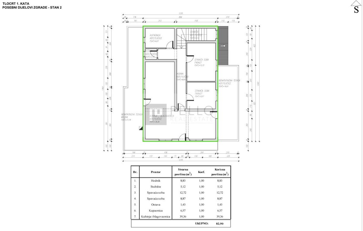
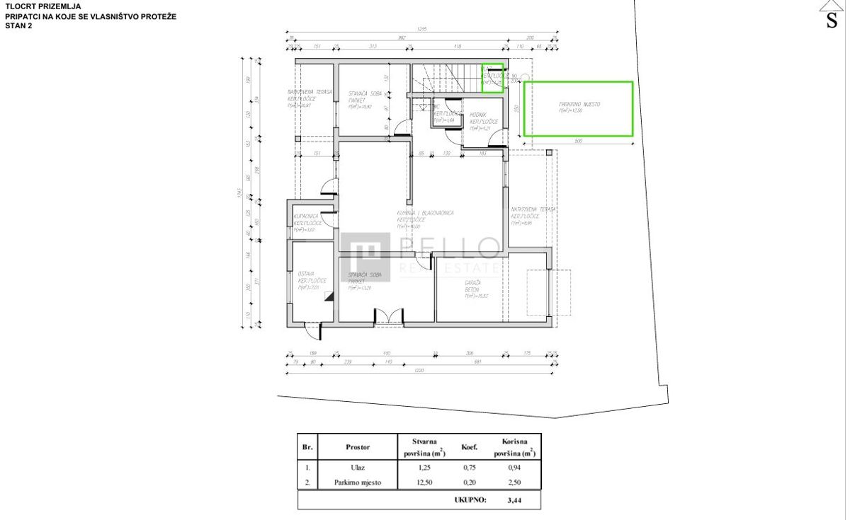
| Površina | 100 m2 |
| Število sob | 3 |
| Število kopalnic | 1 |
| Oddaljenost od morja | 450 m |
Stanovanje z razgledom na morje naprodaj – Orebić, Pelješac Naprodaj je prostorno stanovanje velikosti 100 m², ki se nahaja v nadstropju družinske hiše v samem središču Orebića, le 450 m od morja. Stanovanje obsega: dve udobni spalnici kopalnico prostorno dnevno sobo z veliko naravne svetlobe velik balkon z razgledom na morje Posebne prednosti: čudovit razgled na morje lepo vzdrževana hiša eno lastno parkirno mesto Odlična lokacija v centru Orebića, v bližini morja in vseh storitev. Prostoren balkon, idealen za uživanje v razgledu, naredi to nepremičnino izvrstno izbiro za družinsko bivanje ali kot investicijo za počitnice in turizem. https://youtu.be/5JoecOhAIpw?si=z91JAfWUo7yqEy9Z Ekskluzivna prodaja preko Pello Real Estate.
ID: 1229774