Stanovanje - OPATIJA - 600.000 EUR
| Lokacija | OPATIJA, Primorsko-goranska |
| Cena € | 600.000 |
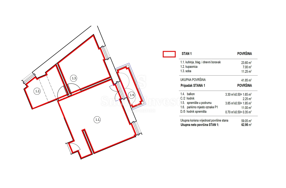
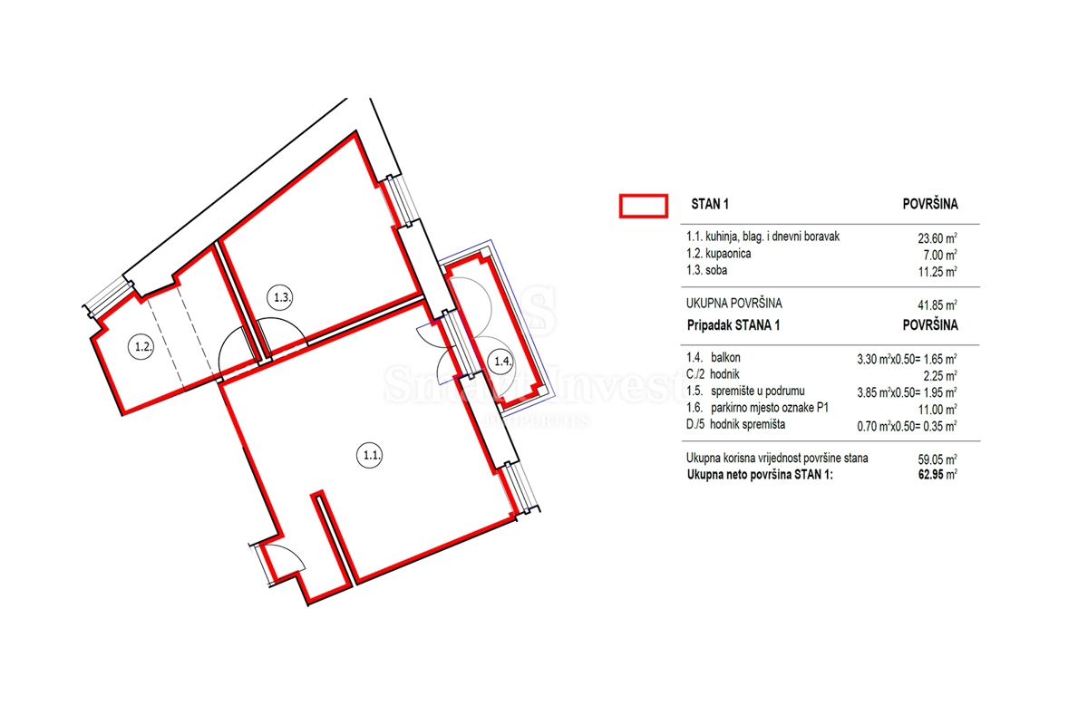
| Površina | 62 m2 |
| Število sob | 2 |
| Število kopalnic | 1 |
| Bližina prevoza | DA |
| Oddaljenost od morja | 20 m |
OPATIJA - CENTER Popolnoma opremljeno stanovanje v čudoviti avstro-ogrski vili na izjemni lokaciji v samem središču Opatije! VILA Vila Artemis se nahaja na odlični lokaciji v samem središču čudovite Opatije in je kot taka redkost na trgu. Leta 2016 je bila popolnoma prenovljena in opremljena, pri čemer so poskrbeli za ohranitev zgodovinskih detajlov, kar potrjuje dejstvo, da je bila celotna prenova izvedena v sodelovanju z oddelkom za konserviranje na Reki. Vila je sestavljena iz kleti, pritličja, 1. in 2. nadstropja ter lepo urejenega podstrešja, vsa nadstropja pa so povezana z dvigalom in imajo ločen sistem ogrevanja s toplotnimi črpalkami - ventilatorskimi konvektorji. Celotna vila je opremljena z alarmnim in video sistemom. Hodnik s stopniščem, obloženim s starim originalnim kamnom, in čudovito kovano železno ograjo izžareva zgodovino, medtem ko je bila tudi zunanjost vile popolnoma prenovljena v smislu fasade in zunanjega lesenega macesnovega stavbnega pohištva z okni. Fasada ima indirektno osvetlitev, zaradi česar je vila ponoči resnično posebna. Zelo pomembno je poudariti, da ima vila lastno parkirišče. ZGODOVINA Vila Artemis na sedanji lokaciji, ob mestni tržnici, je bila zgrajena okoli leta 1908, pred tem pa je bila porušena prejšnja Vila Leda, ki jo je za lastnika Josipa Dujmića zasnoval znani arhitekt Emilio Ambrosini. Na njenem mestu sta brata Milan in Vladimir Kundić, takrat znana mesarja, zgradila novo mestno stavbo, stavba pa je po mnenju poznavalcev najverjetneje že od samega začetka imela stanovanjsko-poslovni namen. Vila Artemis je tipična historicistična vila z enotnim volumnom in bogato dekoracijo (polna ženska figura, različne maskarade, rozete, balkonske konzole, okrašene z rastlinskimi motivi, figurativni friz na atiki itd.), razporejeno v višini prvega in drugega nadstropja skupaj z okni in balkoni z zračno dekorativno kovinsko ograjo med kamnitimi stebri. Vogalni balkon prvega nadstropja, ki ga trije stebri povezujejo z balkonom zgornjega nadstropja, spominja na erker, mansardni prostor, zaključen z visoko navpično bakreno streho s temno zeleno patino, pa zelo spominja na prepoznavno avstro-ogrsko celinsko arhitekturo. Lastniki so verjetno v marsičem vnaprej določili videz vile in ji tako dali neo-stilske značilnosti, saj je bila zgrajena konec prvega desetletja 20. stoletja, ko je bil Ambrosini odprt predvsem za secesijske trende z Dunaja. STANOVANJE 1 Stanovanje 1, ki meri 62,95 m², je v celoti opremljeno z dizajnerskim pohištvom in se nahaja v 1. nadstropju vile z dvigalom. Na voljo so vam: dnevna soba s kuhinjo in jedilnico (skupna površina 41,85 m²), balkon velikosti 2,30 m², pa tudi shramba in hodnik v kleti ter hodnik v 1. nadstropju s skupno površino 17,80 m². Stanovanju pripada tudi parkirno mesto z oznako P1 v velikosti 11,00 m² – še ena dragocena prednost te ekskluzivne nepremičnine. • dizajnersko pohištvo in razsvetljava • vrhunska tehnologija • ogrevanje in hlajenje z ventilatorskim konvektorjem Airmec • talno ogrevanje v kopalnicah • kopalnice opremljene z vrhunsko sanitarno opremo • vrhunsko macesnovo zunanje stavbno pohištvo • varnostna vhodna vrata • dvigalo • 1 parkirno mesto • shramba Vrhunska nepremičnina na edinstveni in zelo redki lokaciji – v samem središču Opatije, v neposredni bližini plaže in vseh ugodnosti! Za več informacij in ogled pokličite: +385/99/320-0008
ID: 1221400