Stanovanje - NOVALJA - 238.000 EUR
| Lokacija | NOVALJA, Ličko-senjska |
| Cena € | 238.000 |
| Površina | 54 m2 |
| Število sob | 3 |
| Število kopalnic | 1 |
| Oddaljenost od morja | 0 m |
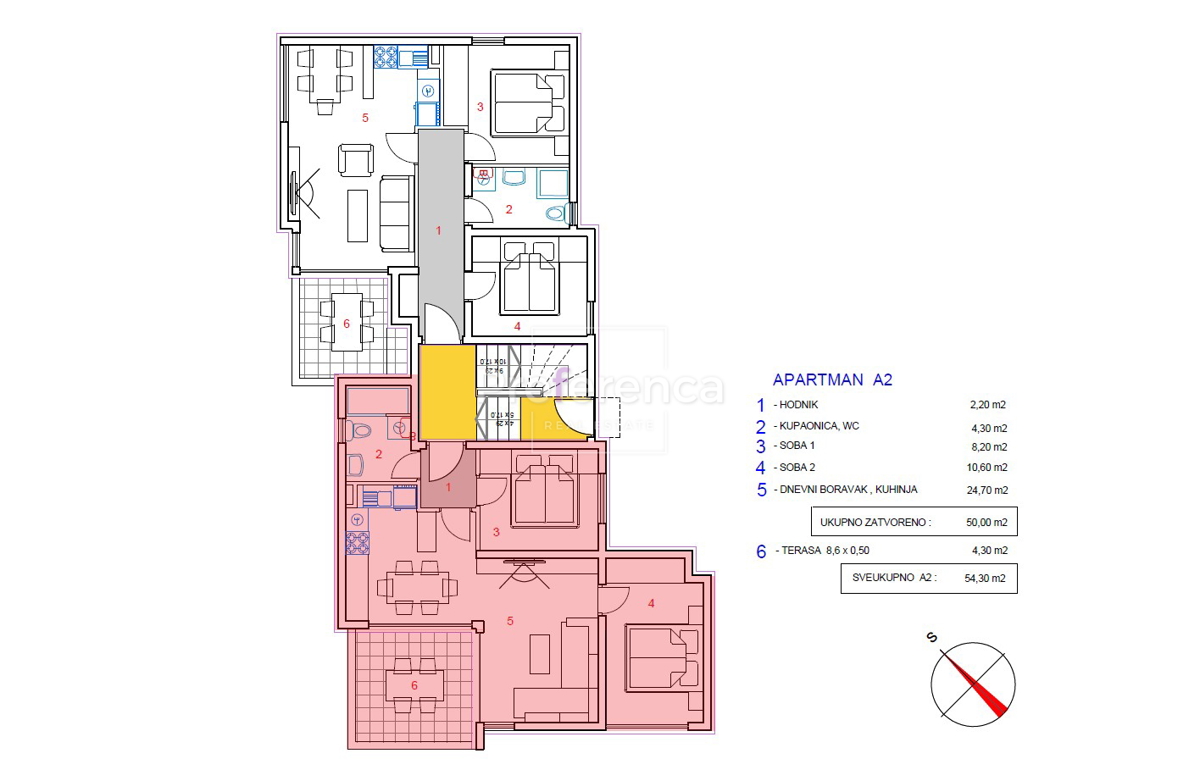
APARTMA A2 — 1. NADSTROPJE, POT LOKVICE (NOVALJA) Moderna novogradnja — pogled na morje — 30 metrov od plaže Začetek gradnje: april 2026 | Zaključek: 2027. Apartma A2 se nahaja v prvem nadstropju stavbe B, v vrhunskem projektu, umeščenem na eni najbolj iskanih lokacij v Novalji. Druga vrsta od morja, pogled na morje, sodoben tloris in visok standard opreme naredijo to nepremičnino idealno za poletni oddih, bivanje ali naložbo. Zaradi privlačnosti lokacije se takšni projekti v Novalji tradicionalno razprodajo v zgodnjih fazah gradnje. TLOCRIS IN POVRŠINE — APARTMA A2 Skupna NKP A2: 54,30 m2 (Netto zaprto 50,00 m2 + terasa obračunsko 4,30 m2) Apartma A2 vsebuje: - Veža — 2,20 m2 - Kopalnica + WC — 4,30 m2 - Spalni prostor 1 — 8,20 m2 - Spalni prostor 2 — 10,60 m2 - Dnevni prostor + kuhinja — 24,70 m2 - Terasa — 8,60 m2 (obračunsko 4,30 m2) Vključeno je eno parkirišče, z možnostjo nakupa dodatnega. OPREMA IN VISOK STANDARD - Talno gretje v kopalnicah - Tri klimatske naprave — Wi-Fi - PVC stavbno pohištvo z visoko energetsko učinkovitostjo - Električne aluminijaste žaluzije, mreže proti komarjem - Drsna steklena stena - Parket ali keramika po izbiri kupca do 35 €/m2 - Moderne kopalnice priznanih proizvajalcev - UTP in optična infrastruktura - Priprava za polnjenje električnega vozila PREDNOSTI LOKACIJE - Drugo zaporedje od morja — cca 30 m - Odprt pogled na morje - Ekskluzivna lega ob najbolj priljubljenih plažah - Peš oddaljenost do vseh vsebin - Mirno, urejeno in varno okolje - Visoko povpraševanje — odlična naložbena priložnost Za vse dodatne informacije, rezervacije in razpoložljivost stanovanj — nas prosim kontaktirajte.
ID: 1234374