Stanovanje - NOVALJA - 235.000 EUR
| Lokacija | NOVALJA, Ličko-senjska |
| Cena € | 235.000 |
| Površina | 70 m2 |
| Število sob | 3 |
| Število kopalnic | 1 |
| Oddaljenost od morja | 0 m |
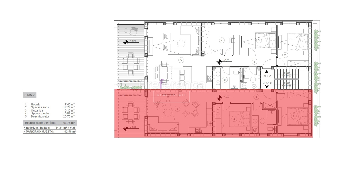
STANOVANJE 2 — 1. NADSTROPJE Novo na trgu — stanovanja v gradnji! Prodaja se sodobno dvosobno stanovanje v urbani stanovanjskem objektu s 6 enotami, ki se nahaja v mirnem delu Novalje. Oddaljeno le 400 m od morja in 550 m od središča mesta — popolno za udobno bivanje, družinske počitnice ali turistični najem. Predviden vselitveni rok: jesen 2026. Stanovanje S-2 sestavljajo vhodna predsoba, dve spalnici, kopalnica ter odprt dnevni prostor s kuhinjo in jedilnico. Iz dnevne sobe je dostop na pokriti balkon velikosti 11,34 m2. Stanovanju pripada eno parkirno mesto na dvorišču. Projektirano za udobje z veliko naravne svetlobe, kakovostnimi materiali in sodobnimi sistemi — keramika visokega standarda, PVC stavbno pohištvo, klimatska naprava. TLOCRT IN POVRŠINE Skupna neto tlorisna površina: 71,92 m2 Neto stanovanje: 63,75 m2 - Predsoba — 7,45 m2 - Prostor 1 — 12,78 m2 - Kopalnica — 6,16 m2 - Prostor 2 — 10,51 m2 - Dnevni prostor s kuhinjo — 26,76 m2 Eksterier: - Pokriti balkon 11,34 m2 (obračun 5,67 m2) - 1 parkirno mesto (obračun 2,50 m2) PREDNOSTI - Odlična lega — bližina morja in centra - Sodobna gradnja in funkcionalna razporeditev - Pokriti balkon za poletno bivanje na prostem - Odlična naložba za osebno bivanje ali turizem Kontaktirajte nas za ogled in predstavitev projekta — stanovanja v gradnji se hitro rezervirajo!
ID: 1231687